Lancez-vous
Connexion
FORMATIONS
Nos formations
Webinaires et Événements
Dossier inondation : Cohabiter avec l'eau
Midrise - Bois vs Béton
Vidéos
SERVICES
Services-conseils énergie et durabilité
Accompagnement énergétique APH
Accompagnement Maisons Canada
Bâtiment à Carbone Zéro
Audit énergétique
Modélisation énergétique
Analyse de résilience climatique
Planification urbaine
Quartiers durables
Réseaux thermiques
Municipalités durables
Coaching aux particuliers
Coaching en rénovation neuve et en construction
Coaching en UHA
Coaching en adaptation aux inondations
Accompagnement JeRénovÉco
Parcours Chauffage et climatisation
Parcours Inondation
GUIDES
Planification et conception
Mode de vie et mobilité
Subventions et incitatifs
Financement hypothécaire et fiscalité
Codes et règlementations
Les certifications écologiques
Écodesign
Maisons autonomes et Nette-Zéro
Matériaux et ressources
Architecture et conception de plans
Entrepreneurs - Expertise
Santé et qualité de l'air
Gestion des déchets
Immobilier et maisons neuves
Fondations et sous-sol
Excavation
Radon
Fondations - Nouvelle construction
Fondations - Rénovation
Drainage et imperméabilisation
Murs et toitures
Coupes de mur - Nouvelle construction
Coupes de mur - Rénovation
Étanchéité - Pare-air - Pare-vapeur
Isolation et insonorisation
Portes et fenêtres
Entretoits - Nouvelle construction
Entretoits - Rénovation
Toitures
Revêtements extérieurs
Contrôle des parasites
Mécanique du bâtiment
Chauffage et climatisation
Ventilation
Plomberie et gestion efficace de l'eau
Électricité
Énergies renouvelables
Intérieurs
Murs et plafonds - Revêtements intérieurs
Planchers et escaliers
Peintures, finis et enduits naturels
Portes et moulures
Cuisines
Salles de bains
Aménagement du sous-sol
Mobilier et décoration
Nettoyage et entretien
Recyclage et compostage
Aménagement extérieur
Terrasses, balcons et gazébos
Pavages et perméabilité du lot
Aménagement paysager
Système d'irrigation
Récupération des eaux de pluie
Production alimentaire
Piscines et bassins naturels
Serres & Solariums
LEED - Guide technique
LEED v4
LEED 2009
Urbanisme et Aménagement du territoire
Aménagement & densité
Îlots de chaleurs
Gestion de l'eau
Matières résiduelles
Transport - déplacement
Réduction des émissions de GES
Municipalités: encourager l'habitation durable
Publications exclusives
Questions et réponses
Rénovation Écohabitation
TROUVER
TROUVER DE L'INSPIRATION
Maisons préfabriquées pour le Québec
Projets exemplaires
Propriétés et condos écologiques à vendre
NOUVEAUTÉS
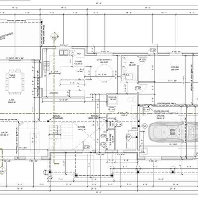
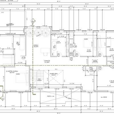
Trouvez des photos de plan de niveau pour des idées de projets de construction près de Granby
---------
Cuisine
Salle à manger
Garde-manger
Salle de bain
Salle d'eau
Chambre
Walk-in et rangement
Chambre d'enfant
Salon
Bureau à domicile
Salle familiale
Véranda et solarium
Façade avant
Finition extérieur
Cour arrière
Cour avant
Cour partagée
Porche et entrée
Patio et pergola
Terrasse et balcon
Toit terrasse
Garage et cabanon
Plate-bande
Jardin potager
Entrée de cour
Serre
Piscine et bassin naturel
Vue aérienne
Escaliers
Hall d’entrée
Couloir
Salle mécanique
Buanderie
Salle de Sport
Salle de jeux
Salle de Cinéma Maison
Cave à Vin et Bar
Grenier
Sous-sol
Rendu 3D
Plan de niveau
Élévation
Plan d'implantation et lotissement
Plan d'aménagement paysager
Détails
Diagramme
Terrain à bâtir et infrastructures
Fondations et vide sanitaires
Structures et ossatures
Toit et entretoit
Mécanique du bâtiment
Travaux - Extérieur
Travaux - Intérieur
Travaux - Aménagement paysager
Avant rénovation
Canada
Alberta (AB), Canada
Colombie-Britannique (BC), Canada
Île-du-Prince-Édouard (PE), Canada
Manitoba (MB), Canada
Nouveau-Brunswick (NB), Canada
Nouvelle-Écosse (NS), Canada
Nunavut (NU), Canada
Ontario (ON), Canada
Québec (QC), Canada
Saskatchewan (SK), Canada
Terre-Neuve-et-Labrador (NL), Canada
Territoires du Nord-Ouest (NT), Canada
Yukon (YT), Canada
Abitibi-Témiscamingue, Québec (QC), Canada
Barrie, Ontario (ON), Canada
Bathurst - Miramichi, Nouveau-Brunswick (NB), Canada
Belleville - Quinte West, Ontario (ON), Canada
Brandon, Manitoba (MB), Canada
Calgary, Alberta (AB), Canada
Charlottetown - Summerside, Île-du-Prince-Édouard (PE), Canada
Chatham-Kent, Ontario (ON), Canada
Cornwall, Ontario (ON), Canada
Courtenay - Campbell River, Colombie-Britannique (BC), Canada
Drummondville/Victoriaville (Centre-du-Québec), Québec (QC), Canada
Edmonton, Alberta (AB), Canada
Fredericton, Nouveau-Brunswick (NB), Canada
Gaspésie/Îles-de-la-Madeleine, Québec (QC), Canada
Gatineau (Outaouais), Québec (QC), Canada
Granby/Bromont/Cowansville (Estrie), Québec (QC), Canada
Grande Prairie, Alberta (AB), Canada
Halifax, Nouvelle-Écosse (NS), Canada
Hamilton - Burlington, Ontario (ON), Canada
Jasper, Alberta (AB), Canada
Joliette (Lanaudière), Québec (QC), Canada
Kamloops, Colombie-Britannique (BC), Canada
Kelowna - Okanagan, Colombie-Britannique (BC), Canada
Kingston, Ontario (ON), Canada
Kitchener - Cambridge - Guelph, Ontario (ON), Canada
Kootenays, Colombie-Britannique (BC), Canada
Lethbridge, Alberta (AB), Canada
London, Ontario (ON), Canada
Medicine Hat, Alberta (AB), Canada
Moncton, Nouveau-Brunswick (NB), Canada
Montréal/Laval/Longueuil (Grand Montréal), Québec (QC), Canada
Nanaimo, Colombie-Britannique (BC), Canada
Ottawa, Ontario (ON), Canada
Owen Sound, Ontario (ON), Canada
Peterborough, Ontario (ON), Canada
Prince Albert, Saskatchewan (SK), Canada
Prince George - Cariboo, Colombie-Britannique (BC), Canada
Québec/Lévis (Ville de Québec), Québec (QC), Canada
Red Deer, Alberta (AB), Canada
Regina, Saskatchewan (SK), Canada
Rimouski (Bas-Saint-Laurent), Québec (QC), Canada
Saguenay/Lac-Saint-Jean, Québec (QC), Canada
Saint Catharines - Niagara Falls, Ontario (ON), Canada
Saint-Jean, Nouveau-Brunswick (NB), Canada
Saint-Jean de Terre-Neuve, Terre-Neuve-et-Labrador (NL), Canada
Saint-Jean-sur-Richelieu (Montérégie), Québec (QC), Canada
Saint-Jérôme/Blainville (Laurentides), Québec (QC), Canada
Sarnia, Ontario (ON), Canada
Saskatoon, Saskatchewan (SK), Canada
Sault-Sainte-Marie, Ontario (ON), Canada
Sept-Îles/Baie-Comeau (Côte-Nord), Québec (QC), Canada
Sherbrooke (Estrie), Québec (QC), Canada
Squamish - Whistler, Colombie-Britannique (BC), Canada
Sudbury (Grand Sudbury), Ontario (ON), Canada
Sunshine coast, Colombie-Britannique (BC), Canada
Thompson, Manitoba (MB), Canada
Thunder Bay, Ontario (ON), Canada
Toronto (Grand Toronto), Ontario (ON), Canada
Trois-Rivières/Shawinigan (Mauricie), Québec (QC), Canada
Vallée de Bulkley, Colombie-Britannique (BC), Canada
Vallée du Fraser, Colombie-Britannique (BC), Canada
Vancouver (Région du Grand Vancouver), Colombie-Britannique (BC), Canada
Victoria, Colombie-Britannique (BC), Canada
Whitehorse, Yukon (YT), Canada
Windsor, Ontario (ON), Canada
Winnipeg, Manitoba (MB), Canada
Wood Buffalo, Alberta (AB), Canada
Yellowknife, Territoires du Nord-Ouest (NT), Canada
Plan de niveau
Granby/Bromont/Cowansville (Estrie), Québec (QC), Canada
reconstruction après sinistre
Sauvegarder
MG Tech Architecture
reconstruction après sinistre
Sauvegarder
MG Tech Architecture
Référencez votre entreprise ici gratuitement !
En savoir plus
Lancez-vous !
Retour
Une erreur est survenue. Désolé pour le dérangement.
Fermer
Annuler
Confirmer