Série M

Plex modulaire élégant et hyperperformant

L. McComber Architecture vivante
Disponible bientôt! Inscrivez-vous à notre liste de rappel.

S'inscrire

Le produit construit peut différer de l'image. © L. McComber – architecture

Entièrement préfabriquée en modules, la série M s’assemble rapidement. Son architecture élégante n’a d’égal que sa performance écologique exemplaire. À deux ou trois étages, mitoyennes, semi-détachées ou isolées, les résidences tirent le meilleur parti de chaque site pour le bonheur des familles qui souhaitent vivre ensemble !

Véritable concentré de talents, elle est le fruit du travail de la firme d'architecture L.McComber.

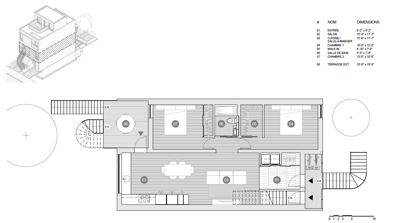
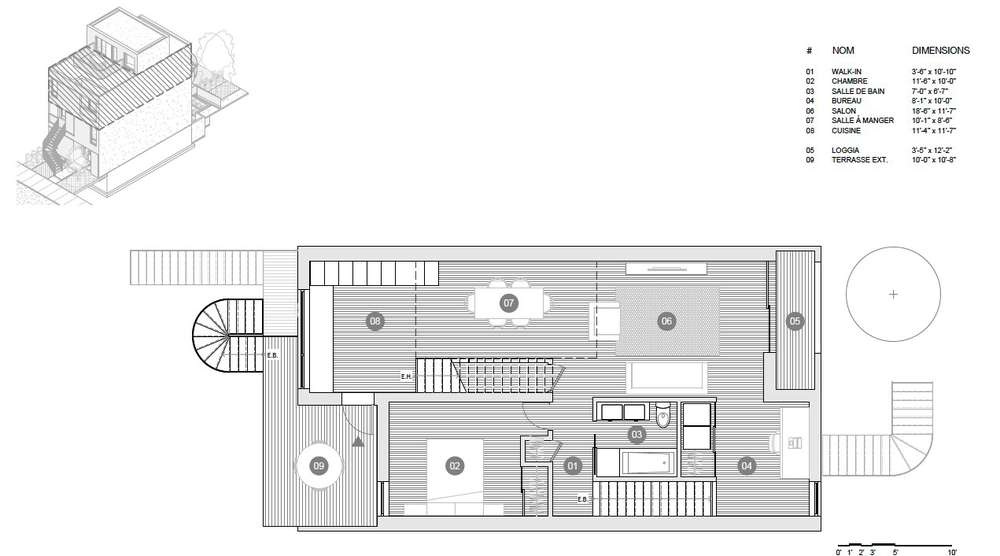
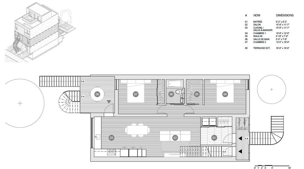
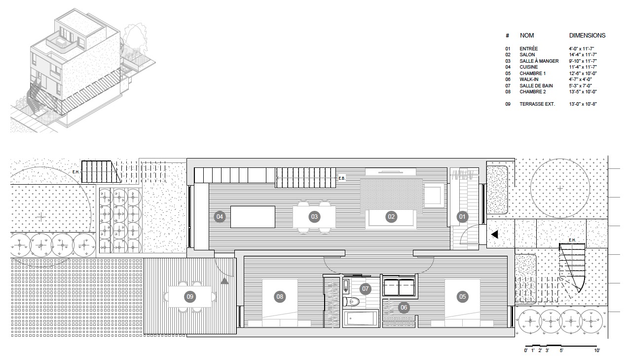
Type : Plex modulable
Superficie habitable : 1 060 pi2 (moyenne pour un plex)
Étages (s-sol exclu) : 1 à 3
Chambres : 3 (un plex)
Consommation totale : 7 861 kWh/an
Coût énergétique : 706$/an*
Cote ISP : 20 kWh/m2 par année
Certification visée : LEED® Platine

*Selon l'orientation plein sud et les estimations d'une simulation énergétique basée sur les équipements prévus dans les plans.

Images

Intérieur

Extérieur

Vidéo

Plans

LA SÉRIE M SERA DISPONIBLE SOUS PEU!
INSCRIVEZ-VOUS À NOTRE LISTE DE RAPPEL.

S'inscrire

Le kit inclut :

Module 100%
fabriqué en usine

Finition extérieure
et toiture

Portes et fenêtres
haute performance

Options :

Personnalisation

Clé en main : finition
intérieure
complète en
matériaux sains et locaux

Garage

Non inclus :

Terrain

Fondations

Puits & système de
traitement de l'eau

Caractéristiques

Architecturales

  • Style contemporain
  • Concept modulaire et évolutif
  • 1 à 3 étages (plex)
  • 3 pièces par étage (plex)
  • Mezzanine et terrasse au toit en option
  • Architecture optimisée pour le solaire passif
  • Adapté pour sous-sol

Techniques

  • Modules préfabriqués en usine
  • Modules installés sur fondations
  • Fabriqués avec des matériaux écologiques de provenance régionale

Finitions proposées avec l'option clé en main

  • Plancher radiant hydronique
  • Possibilité de finition intérieure complète en usine
  • Mur et plafond en gypse
  • Armoires de cuisine
  • Comptoir de quartz dans la cuisine et salle de bain
  • Sélection de matériaux sans COV pour un air intérieur sain

Fondation

  • Adapté pour sous-sol
  • Adapté pour vide sanitaire

Murs

  • Structure 2 x 8
  • Isolant cellulose à haute densité et isolant rigide
  • Double fourrure intérieure permettant une installation du filage électrique rapide

Toiture et revêtement extérieur

  • Revêtement extérieur à valider selon la réglementation du terrain
  • Double fourrure
  • Isolant de cellulose à haute densité
  • Toiture élastomère

Portes & fenêtres

  • Triple vitrage performant
  • Gaz argon
  • Double couche de pellicule basse émissivité pour une isolation maximale
  • Valeur R moyenne : R6

Démarche architecturale

L. Mc Comber - architecture vivante

L. McComber est une firme d’architecture et de design réputée pour la justesse de ses interventions et pour sa grande sensibilité au contexte. De la construction d’unité d’habitations sur des lots irréguliers à la conception de commerces de niche en passant par la transformation de résidences exiguës ou mal-aimées, chaque réalisation combine la force d’évocation à la rigueur d’exécution.

De conception et fabrication entièrement québécoise, la Série M transcende notre climat rigoureux. Son architecture élégante n’a d’égal son excellente performance environnementale. Entièrement préfabriquées, ces résidences modulaires s’assemblent rapidement. En triplex, en duplex avec ou sans mezzanine, mitoyennes, semi-détachées ou encore isolées, elles tirent le meilleur partie de chaque site pour le bonheur des familles qui souhaitent vivre ensemble !

Crédit photo : Cindy Boyce

 

FAQ

Ça coûte combien?

Information à venir. Contacter le [email protected]

Peut-on personnaliser les plans?

Oui, il est possible de personnaliser les plans dans la mesure ou le kit n'est pas complètement dénaturé et trop éloigné du design d'origine et ne remplit plus les critères de performace. Les modifications aux plans sont effectuées uniquement par l'architecte selon son tarfi horaire en vigueur.

Qui fabrique et monte le Kit?

Le Kit est en développement et sera disponible sous peu. Plus d'information sur le fabricant sera bientôt disponible.

Est-ce possible de construire le Kit partout au Québec?

Oui, il est possible de faire construire le Kit partout au Québec en autant que votre terrain possède un accès (route) qui permet l'acheminement des pièces du Kit et de la machinerie nécessaire au montage.  Le fabricant dispose d'équipes de montage qui peut se déployer sur tout le territoire québecois.

Qui est l'architecte du Kit?

L. McComber est la firme d'architectrure et de design qui a développé le Kit, réputée pour la justesse de ses interventions et pour sa grande sensibilité au contexte. De la construction d’unité d’habitations sur des lots irréguliers à la conception de commerces de niche en passant par la transformation de résidences exiguës ou mal-aimées, chaque réalisation combine la force d’évocation à la rigueur d’exécution.

SOYEZ INFORMER LORSQUE LA SÉRIE M SERA DISPONIBLE

 

Inscrivez ici votre courriel dans notre liste de rappel pour être tenu au courant et recevoir toute l'information lors du lancement du kit!