Studio MMA Architecture + Design

  • 18 Réalisations
  • 1 Service
Voir cette entreprise

Maison au pignon

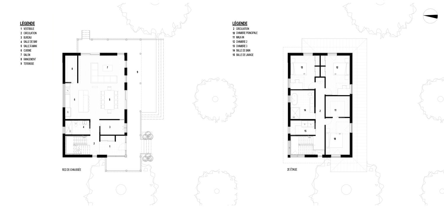
Plan de niveau, Gatineau (Outaouais)

Située dans le district d’Aylmer à Gatineau, la maison au Pignon s’implante entre de grands arbres matures pour accueillir une jeune famille de la région.

Le projet déploie plusieurs stratégies écoénergétiques afin d’atteindre les certifications Novoclimat 2 et LEED for Homes. Tout d’abord, le volume du bâtiment est limité afin de minimiser les besoins en climatisation. Un volume compact a ainsi été conçu pour accueillir l’organisation soignée d’espaces de vie au Sud et d’espaces servant au Nord. Ce volume s’allongeant légèrement sur l’axe est-ouest confère un profil idéal pour l’éclairage naturel des espaces intérieurs tout en conservant un maximum de l’énergie accumulée dans le bâtiment. En plus de ces attentions géométriques, des efforts techniques ciblés et mesurés sont réalisés à travers la conception de l’enveloppe pour optimiser la performance thermique de l’ensemble. Ainsi, en plus d’une isolation rehaussée, la résidence pourra compter sur des ouvertures très performantes et protégées par des avant-toits placés avec soin. La résidence intègre également dans le choix de ses matériaux plusieurs éléments misant sur un approvisionnement local, durable et issu de l’économie circulaire. Toutes ces considérations démontrent comment l’intégration de stratégies écoénergétiques peut contribuer à l’esthétique d’une résidence pour en faire un milieu de vie fonctionnel et attrayant.

Recherches associées