Maison Kénogami

Mécanique du bâtiment

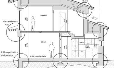
La maison était, à sa construction en 2015, la plus  énergétiquement efficace du Québec. Elle est LEED Platine, avec le plus grand nombre de points jamais obtenus au Canada à cette date.

Recherches associées