Quinzhee Architecture

  • 8 Réalisations
  • 1 Service
Voir cette entreprise

Cantin-Tobin

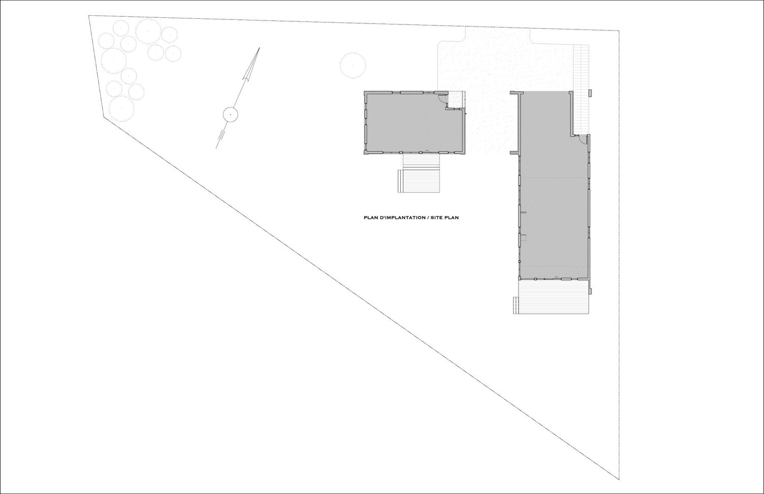
Plan d'implantation et lotissement, Québec/Lévis (Ville de Québec)

Sixième projet couvert dans notre série sur les unités d’habitation accessoires (UHA), voici une magnifique maison bigénérationnelle construite en banlieue de Québec. Pour s'adapter à la forme atypique du terrain qui ne pouvait recevoir une maison type préusinée et pour répondre à la fois aux besoins de la jeune famille et des grands-parents, ce projet a nécessité l'implication de la firme Quinzhee Architecture.

Travaillant de près avec les clients qui désiraient avoir une section à étage pour la jeune famille et une section de plain-pied pour les grands-parents, Quinzhee a proposé un plan original qui permet de conserver l'intimité tout en favorisant la proximité des familles. Côté design écologique, en tablant sur une grande fenestration qui fait face au sud, la firme a aussi su optimiser le design pour maximiser les gains solaires passifs en hiver tout en évitant la surchauffe estivale grâce à des pares soleils, une terrasse et une pergola.

Design d'UHA attachée bigénérationnelle

  • Deux bâtiments autonomes seulement attachés par le toit
  • Adaptation au vieillissement avec une section de plain-pied pour les grand-parents
  • Plus d'espace avec une maison à étage pour la jeune famille
  • Attention portée aux détails pour l'orientation des espaces intérieurs et extérieurs et des vues entre les bâtiments pour concilier la proximité avec le besoin d'intimité

Aspects écologiques

  • Principes de design solaire passif
  • Grande fenestration vers le sud permettant des gains solaires
  • Usage d'une pergola, d'une grande terrasse couverte et de pares-soleils pour limiter la surchauffe estival
  • Étanchéité continue et isolation des ponts thermiques

Recherches associées

Autres photos dans Cantin-Tobin