vib architecture inc.

  • 4 Réalisations
  • 1 Service
Voir cette entreprise

v-113

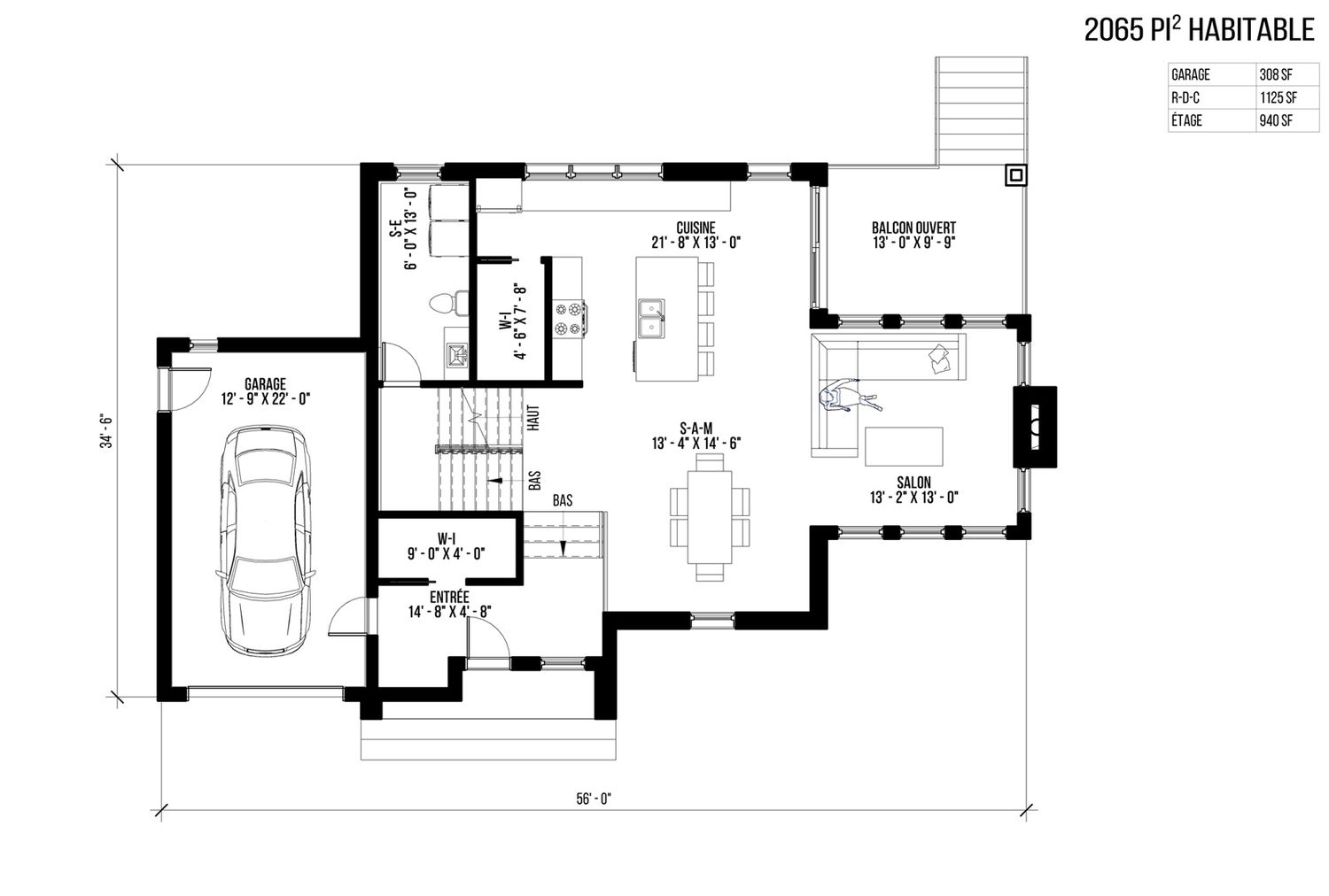
Plan de niveau, Joliette (Lanaudière)

Le plan v-113 est parfait pour la ville ou la banlieue. Les aires de vie ouverte permettent d’être en contact avec tous les occupants. Le balcon placé sur le côté de la maison dégage l’espace arrière pour maximiser la vue, et laisser entrer le soleil. Que ce soit une vue sur votre piscine ou sur la mer, vous serez comblée. Son look très actuel agence la pierre et 2 couleurs de bois pour créer un équilibre entre la légèreté et la solidité des volumes.

SUPERFICIE HABITABLE : 2065 pi2

Rez-de-chaussée : 9’-0’’

Étage : 8’-0’’

Garage : 1

Étage :2

Chambre : 3

Salle d’eau : 2.5

Recherches associées

Autres photos dans v-113