ExARCITÉ inc

  • 4 Réalisations
  • 2 Services
Voir cette entreprise

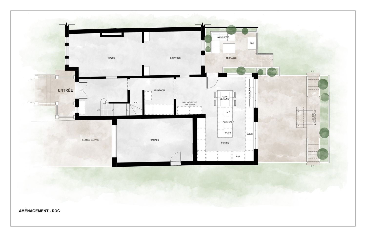
Plan du rez-de-chaussée

Plan de niveau, Montréal/Laval/Longueuil (Grand Montréal)

Autres photos dans Montréal