Strüktek

  • 2 Réalisations
  • 1 Service
  • 1 Produit
Voir cette entreprise

BJÔRN

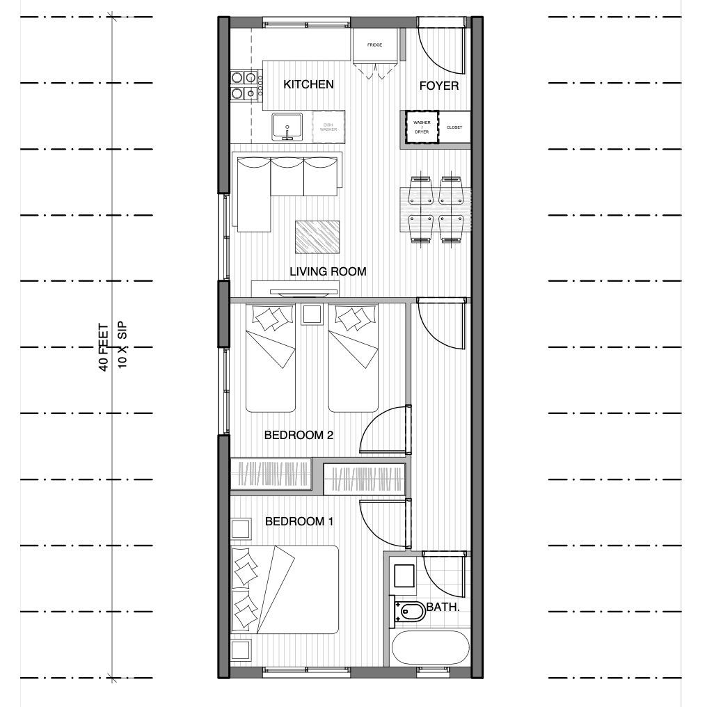
Plan de niveau, Montréal/Laval/Longueuil (Grand Montréal)

Cette résidence économe en énergie et élégante offre un aménagement spacieux, intégrant la durabilité et la durabilité des panneaux Strüktek pour offrir un espace de vie confortable aux propriétaires à la recherche d'un style de vie moderne et respectueux de l'environnement.

Présentation du Bjorn, une maison de style scandinave de deux chambres conçue avec la technologie Strüktek de pointe, offrant un mélange harmonieux de design élégant, d'efficacité énergétique et de durabilité pour ceux qui recherchent un espace de vie moderne et durable.

Nos plans de bâtiment et d'étage chez Strüktek sont méticuleusement conçus pour donner la priorité à la fonctionnalité, au style et à la durabilité. Avec des agencements soigneusement pensés, une utilisation efficace de l’espace et une intégration transparente des panneaux Strüktek, nos plans offrent l’équilibre parfait entre esthétique et praticité pour un large éventail de projets de construction.

Recherches associées

Autres photos dans BJÔRN