Strüktek

  • 2 Réalisations
  • 1 Service
  • 1 Produit
Voir cette entreprise

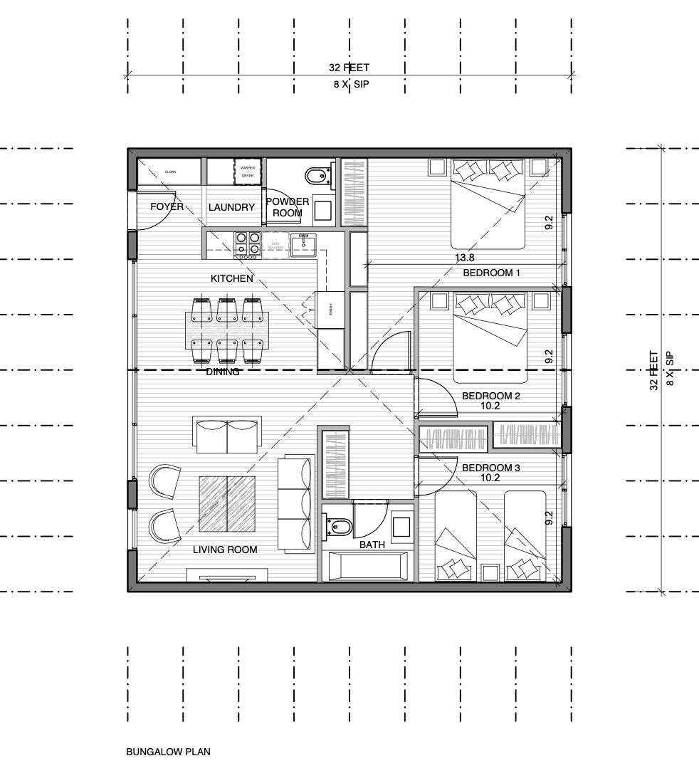
KANÜT

Plan de niveau, Montréal/Laval/Longueuil (Grand Montréal)

Cette résidence économe en énergie et élégante offre un aménagement spacieux, intégrant la durabilité et la durabilité des panneaux Strüktek pour offrir un espace de vie confortable aux propriétaires à la recherche d'un style de vie moderne et respectueux de l'environnement.

Kanüt est le choix idéal pour les familles à la recherche d'un cadre de vie harmonieux. Avec son agencement spacieux et ses trois chambres, ce bungalow Strüktek offre suffisamment d'espace pour que les membres de la famille se détendent, jouent et créent des liens ensemble, tandis que sa conception économe en énergie garantit un style de vie confortable et durable pour les générations à venir.

Nos plans de bâtiment et d'étage chez Strüktek sont méticuleusement conçus pour donner la priorité à la fonctionnalité, au style et à la durabilité. Avec des agencements soigneusement pensés, une utilisation efficace de l’espace et une intégration transparente des panneaux Strüktek, nos plans offrent l’équilibre parfait entre esthétique et praticité pour un large éventail de projets de construction.

Recherches associées

Autres photos dans KANÜT