KSM3D

  • 3 Réalisations
  • 1 Service
Voir cette entreprise

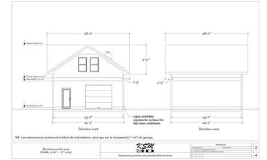
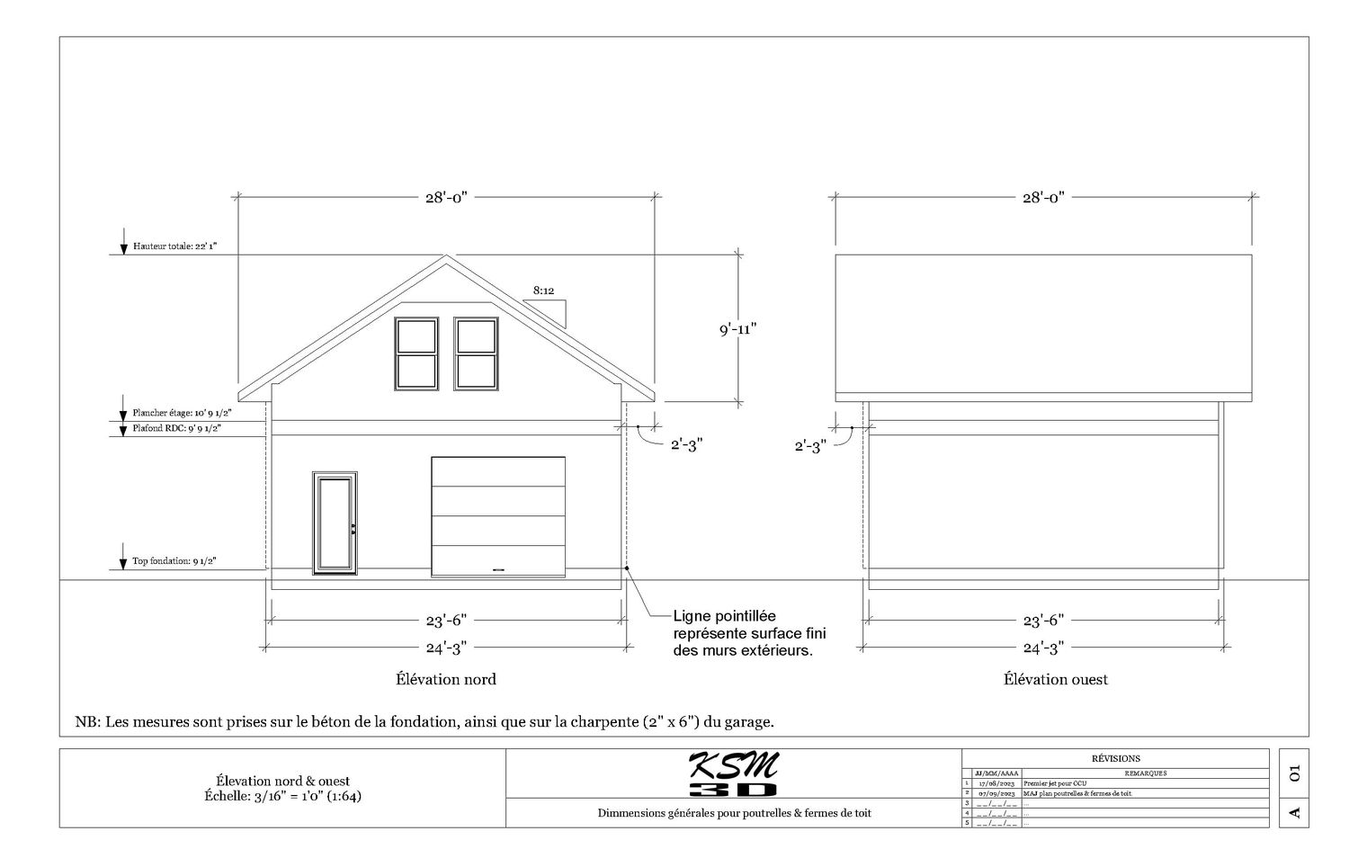
Garage détaché

Élévation, Granby/Bromont/Cowansville (Estrie)

Pour ce projet, le client souhaitait proposer la construction d'un garage détaché au comité consultatif d'urbanisme.

Comme l'été tirait à sa fin, il était impératif de faire bonne impression dès la première proposition, afin d'assurer la construction du garage avant l'arrivée de l'hiver.

Grâce à l'ajout de plusieurs illustrations détaillées qui laissent peu de place à l'ambiguïté, le projet a pu avancer comme prévu.

De plus, les dessins 3D étant déja précis, ils pu être utilisés comme référence pour les demandes de soumissions des fondations, ainsi que des fermes de toit.

Recherches associées

Autres photos dans Garage détaché