L’Abri 1850-BV

Maison préfabriquée de Studio MMA 

l'Abri 1850-BV maison préfabriquée en usine écologique © Studio MMA

Maison de campagne à plusieurs variantes, l'Abri 1850-BV met la cour au cœur de l'aménagement. Une terrasse intime à l'abri des vents et de la vue est enveloppée par la chambre principale et par une aire de vie généreuse et ouverte au parcours du soleil.

Consulter tous les différents modèles de l'Abri.

Véritable concentré de talents, elle est le fruit d’une collaboration inédite entre la firme d'architecture Studio MMA et le manufacturier de structures préfabriquées en kits, Bâtiment Pré-Fab inc.

Notez qu’Écohabitation ne vend pas de maisons : notre rôle fut d’optimiser ces modèles pour leur performance et leur compatibilité avec la certification LEED. Notre partenaire fabricant prend en charge la vente et le suivi des projets.
 

Recevoir un estimé

Type : Unifamiliale
Superficie habitable : 1 673 pi2
Étage (s-sol exclu) : 1
Chambres : 3
Consommation totale : 12 509 kWh/an
Coût énergétique : 1 077$ /an*
Cote ISP : 27 kWh/m2 par année
Certification visée : LEED® Platine
                                   Novoclimat

*Selon l'orientation plein sud et les estimations d'une simulation énergétique basée sur les équipements prévus dans la maison modèle.

Images

Façade avant

Aire ouverte avec vue sur le salon

Aire ouverte avec vue de la cuisine

Aire ouverte avec vue sur la cour

Le kit inclut :

Structure en panneaux
préfabriqués en usine

Finition extérieure
et toiture

Portes et fenêtres
haute performance pré-installées

Options :

Personnalisation

Clé en main : finition
intérieure
complète en
matériaux sains et locaux

Garage

Non inclus :

Terrain

Fondations

Puits & système de
traitement de l'eau

OBTENEZ DÈS MAINTENANT UN ESTIMÉ
GRATUITEMENT AUPRÈS DU FABRICANT!

Recevoir un estimé

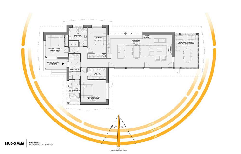
Plans

Caractéristiques

Architecturales

  • Style contemporain
  • Plain-pied
  • Architecture optimisée pour le solaire passif
  • Grande aire vitrée
  • Conçu pour dalle de béton 
  • Deux salles de bains complètes
  • Grande terrasse arrière
  • Option de garage

Techniques

  • Kit de murs en panneaux fabriqués et pré-isolés en usine
  • Montés en chantier
  • Sélection de matériaux durables permettant un assèchement efficace

Finitions proposées avec l'option clé en main

  • Mur et plafond
  • Armoires de cuisine
  • Comptoir
  • Revêtement extérieur en bois et maçonnerie
  • Sélection de matériaux sans COVs pour un air intérieur sain

Portes & fenêtres

  • Triple vitrage performant
  • Gaz argon
  • Double couche de pellicule basse émissivité pour une isolation maximale
  • Valeur R moyenne : R6

Fondations

  • Conçu pour fondations complètes / sous-sol
  • Adapté pour vide sanitaire

Murs

  • Structure double ossature
  • Isolant cellulose à haute densité avec isolant rigide
  • Fourrure

Toiture et revêtement extérieur

  • Toiture métallique
  • Double fourrure
  • Revêtement de bois

Concept architectural, fabrication: découvrez-en plus sur nos maisons préfabriquées l'Abri ici dans notre article complet.

Découvrez tous les modèles L'Abri!

L'Abri 550-BV
Le petit plain-pied 
de style loft

L'Abri 750-BV
Le petit plain-pied 
avec 1 chambre

L'Abri 1400-SV
Le petit plain-pied 
de style loft

L'Abri 1100-SV
La maison médiane avec
 rez-de-jardin ou sous-sol

L'Abri 1500-SV
La grande maison avec
rez-de-jardin ou sous-sol

Démarche architecturale

STUDIO MMA Architecture + Design

Studio MMA est un atelier d’architecture montréalais fondé en 1999 à l’avant-garde de la construction écologique. Passionné du design et du travail artisanal, celui-ci est engagé dans une démarche de qualité et de développement durable. Leur approche fonctionnelle et esthétique à la conception des bâtiments répond aux contraintes et opportunités particulières à chaque projet en tirant avantage de ces dernières pour proposer des réponses adaptées et originales.

L'Abri 550-BV mise sur le bien-être et le confort des résidents en proposant une aire de vie intérieure lumineuse ainsi qu'une aire de vie extérieure généreuse. Un bâtiment doit exprimer, appuyer et inspirer les personnes qui y vivent. La qualité de la conception et l’attention portée aux détails sont les outils qui mènent à une architecture réussie.

@Studio MMA, de gauche à droite

ALEXIE L SÉGUIN, Stagiaire en architecture OAQ
MANON PAQUET, Stagiaire en architecture OAQ
GODEFROY MEYER, Architecte MOAQ
VOULI MAMFREDIS, Architecte MOAQ
ROB MINERS, Architecte MOAQ
ÉLIZABETH GROU, adjointe administrative
MARTIN LABELLE, architecte MOAQ

Construction & fabrication

Logo

 

BÂTIMENT PRÉ-FAB INC.

Bâtiment Pré-Fab inc. est le seul courtier en bâtiment au Québec qui offre à ses clients des structures préfabriquées au meilleur prix en bois et en acier galvanisé. 

Spécialiste des bâtiments en kit, prêts à assembler, permettant de construire dans un délai beaucoup plus rapide. Leurs bâtiments sont construits sur mesure selon vos besoins. Tous leurs produits sont QUÉBÉCOIS, favorisant ainsi NOTRE ÉCONOMIE.

FAQ

Ça coûte combien?

Pour obtenir un estimé, remplissez ce formulaire. 

Peut-on personnaliser les plans?

Oui, il est possible de personnaliser les plans dans la mesure ou le kit n'est pas complètement dénaturé et trop éloigné du design d'origine et ne remplit plus les critères de performace. Les modifications aux plans sont effectuées uniquement par l'architecte selon son tarfi horaire en vigueur. Contacter directement le fabricant, Bâtiment Pré-Fab, pour en savoir plus sur les options de personnalisation.

CONTACTER LE FABRICANT

Qui fabrique et monte le Kit?

Le fabricant du Kit est Bâtiment Préfab, le seul courtier en bâtiment au Québec qui offre à ses clients des structures préfabriquées au meilleur prix en bois et en acier galvanisé.

Le fabricant dispose d'une équipe de montage qui peut bâtir le Kit pour vous. Il est aussi possible de choisir vous même votre équipe de montage.

Est-ce possible de construire le Kit partout au Québec?

Oui, il est possible de faire construire le Kit partout au Québec en autant que votre terrain possède un accès (route) qui permet l'acheminement des pièces du Kit et de la machinerie nécessaire au montage.  Le fabricant dispose d'équipes de montage qui peut se déployer sur tout le territoire québecois.

Qui est l'architecte du Kit?

 Studio MMA est la firme d'architectrure qui a développé le Kit. Fondée en 1999 à l’avant-garde de la construction écologique, passionné du design et du travail artisanal, celle-ci est engagée dans une démarche de qualité et de développement durable. Leur approche fonctionnelle et esthétique à la conception des bâtiments répond aux contraintes et opportunités particulières à chaque projet en tirant avantage de ces dernières pour proposer des réponses adaptées et originales.