Maison contemporaine à plusieurs variantes, l'Abri met la cour au cœur de l'aménagement. La terrasse intime à l'abri des vents et des regards est enveloppée par une aire de vie généreuse et ouverte au parcours du soleil.

Prêt à construire et répondant aux plus hautes exigences de la certification LEED®, l'Abri fait partie de la collection des Kits Écohabitation. Cette maison préfabriquée à prix abordable est le fruit d’une collaboration inédite entre la firme d'architecture Studio MMA Architecture et Design et le manufacturier de structures préfabriquées en kits, Bâtiment Pré-Fab Inc. 

Concept architectural basé sur le confort, l'intimité et le plein soleil

L’Abri est un chez-soi qui sort du commun. Il a été pensé pour préserver la tranquillité de la vie de couple, de famille et sociale. Au cœur du concept: un intérieur chaleureux et agréable à l’abri des regards. « Le nom l’Abri est inspiré du côté enveloppant de la maison. Après tout, à la base une maison est un abri pour nos vies privées » explique Rob Miners, architecte, PA LEED BD+C, associé chez Studio MMA.

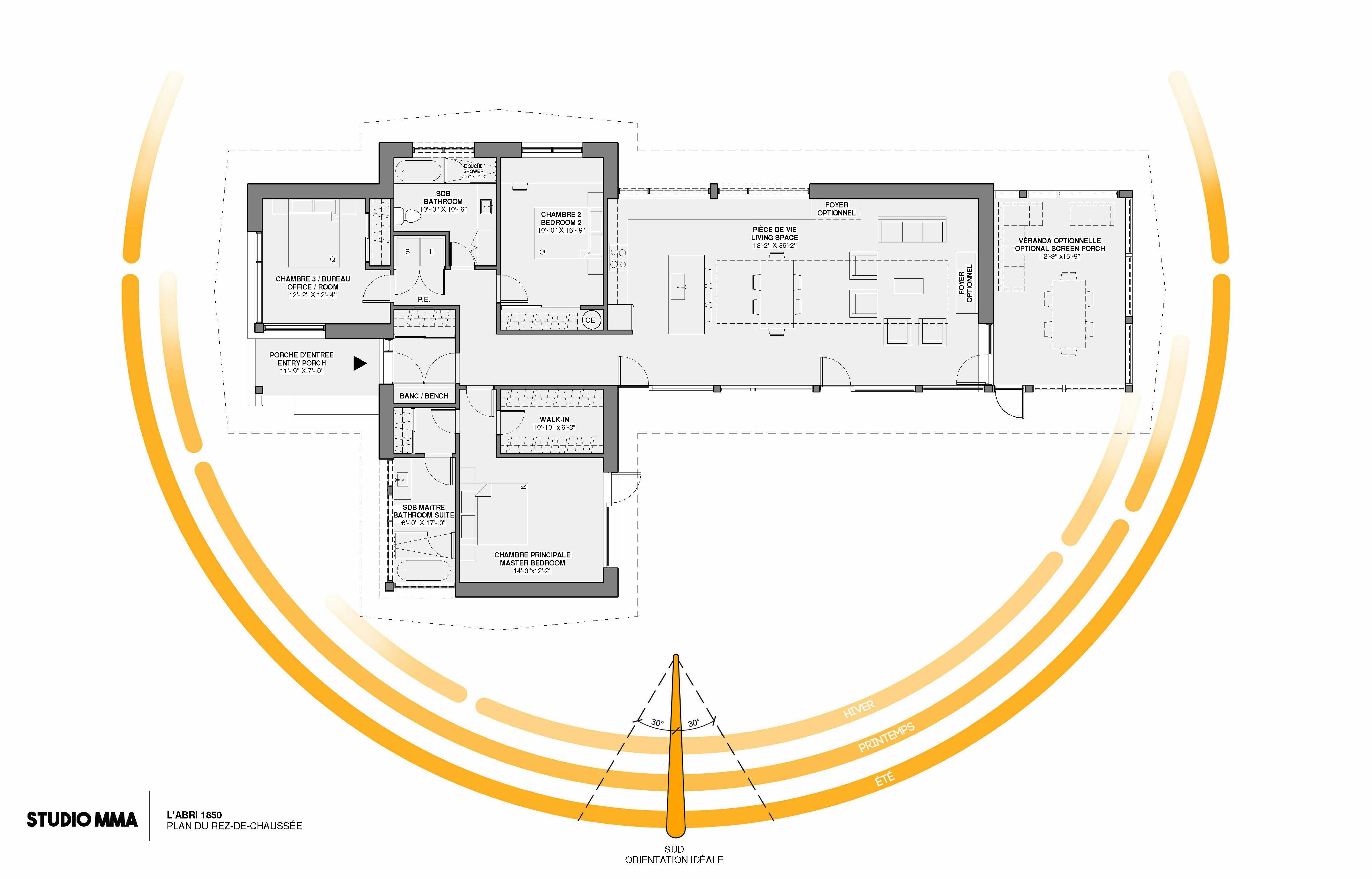
La forme en L et la connexion avec le paysage autour de la maison remplissent parfaitement cette mission. L’entrée est orientée vers la rue, offrant une façade accueillante sans dévoiler la vie intérieure de la maison. Au creux du L, la pièce de vie principale en aire ouverte est le cœur du bâtiment. Cette aire de vie, ouverte au sud par une baie vitrée spectaculaire, laisse entrer généreusement la lumière. Un véritable écrin pour le soleil!

Avec ses 650 pieds carrés, la pièce principale offre une sensation d’espace intéressante. « En éliminant les frontières entre les pièces et en créant des longs axes de vue, on peut vivre dans plus compact tout en ayant une sensation d’espace. La hauteur des plafonds à 9 pieds donne la touche finale », commente Rob Miners.

« Le concept de plain pied intéresse beaucoup les potentiels acquéreurs qui approchent de la retraite: il est adapté à leurs besoins. L'Abri est un modèle idéal pour la famille mais aussi pour les personnes à mobilité réduire et les jeunes retraités. » Benoit Gingras, Président de Bâtiment Pré-fab

L'Abri: Avec ses 650 pieds carrés, la pièce principale offre une sensation d’espace intéressante, ouverte sur la terrasse extérieur et la nature environnante
Avec ses 650 pieds carrés, la pièce principale offre une sensation d’espace intéressante, ouverte sur la terrasse extérieur et la nature environnante © Studio MMA

Cette pièce est aussi agrandie visuellement et fonctionnellement par la terrasse adjacente. Fermée au nord et du côté de la rue, cette terrasse est protégée des allées et venues de la rue par le corps du bâtiment. Une seconde aire de vie à part entière! En option, on peut installer une véranda avec moustiquaire au bout de la maison, ce qui offre un autre espace où l’on peut profiter de l’extérieur en paix. L’option est particulièrement intéressante dans les Laurentides et Lanaudière!

Design d'intérieur chaleureux et minimaliste

Pour amplifier la sensation d’espace sans voler la vedette au paysage, l’équipe de Studio MMA a misé sur un design intérieur minimaliste. L’espace offre un bel équilibre entre la luminosité des surfaces blanches et la richesse du bois.

Le mobilier intégré, sobre et très esthétique, est centralisé dans la cuisine et le long du mur nord. Ces espaces de rangement généreux sauront ordonner les effets personnels de toute la famille.

L'Abri: la pièce principale est confortable et ensoleillée, avec sa baie vitrée de 36 pieds de long en triple vitrage
La pièce principale est confortable et ensoleillée, avec sa baie vitrée de 36 pieds de long en triple vitrage © Studio MMA 

L’option clé-en-main comprend la finition des murs et plafonds en gypse, les armoires de cuisine et l’îlot sans formaldéhyde, le comptoir en quartz, sélectionnés pour leur origine locale et leur absence de COV. Bref, tout pour un air intérieur sain!

Maison solaire passive: dans les règles de l’art

La baie vitrée spectaculaire, qui s’étend sur plus de 36 pieds de long, favorise les gains solaires. La demande en énergie du bâtiment en est réduite de beaucoup. Parallèlement, pour protéger la maison des surchauffes estivales et des pluies d’automne et de printemps, de grands débords de toit ont été prévus.

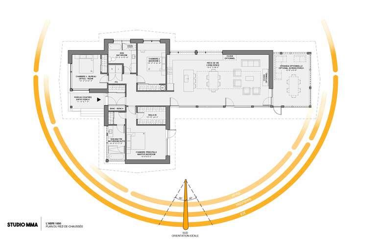
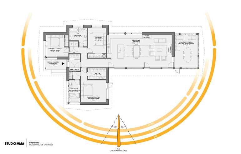
Plan de la maison: une forme en L, la pièce principale en aire ouverte et une vaste terrasse au sud © Studio MMA

Côté nord, la maison tourne le dos aux vents hivernaux: elle ne comporte que des fenêtres en hauteur pour profiter de la clarté du jour sans nuire à l’intimité. La terrasse, située au sud, bénéficie donc d’un ensoleillement maximal et de son propre microclimat, plus tempérée et confortable en hiver.

À l'instar de murs et d'un toit très performants sur le plan énergétique, l'Abri remplit tous les critères d’une conception solaire passive pour bénéficier du passage du soleil en toute saison.

Enveloppe performante et matériaux de qualité: le préfabriqué par Bâtiment Pré-Fab et Studio MMA

Lorsque le projet des Kits Écohabitation a pris forme, les équipes de Studio MMA et du manufacturier Bâtiment Pré-Fab ont travaillé à simplifier et standardiser le processus de la construction. « Bâtiment Pré-Fab et Écohabitation ont été des collaborateurs exceptionnels dans ces démarches. L’expérience et l’expertise de chacun a pleinement profité à la conception performante et la qualité du concept » affirme Rob Miners.

L’équipe de préfabrication de Bâtiment Pré-Fab monte les panneaux en usine: la double ossature isolée à la cellulose à haute densité et un isolant rigide extérieur supplémentaire est assemblée en panneaux, sur lesquels les fourrures sont posées. Après le transport, ces panneaux sont assemblés sur le chantier. Qualité, flexilibilité et rapidité d'installation: l'expertise de Bâtiment Pré-Fab permet de construire une enveloppe que l'on prévoit ultra-performante et sert parfaitement le concept architectural.

« Bâtiment Pré-Fab est très heureux d'offrir des modèles avec une telle qualité architecturale et environnementale: les demandes de soumissions arrivent par milliers! L'enjeu sera de gérer la croissance pour pouvoir monter les maisons partout au Québec » Benoit Gingras

L’enveloppe a été conçue pour être hyperperformante: l’Abri 1850-BV, avec ses 3 chambres, ne consomme que 27 kWh/m2 par année. Dans ces circonstances, prévoir son budget de chauffage et électricité de 1 077 $ par an, soit 90 $ mensuels, devient une perspective agréable! De plus, la conception brillante de la maison la qualifie pour une certification LEED® Platine et l’accréditation Novoclimat.

L’attention portée aux moindres détails de conception, notamment autour des ouvertures de portes et fenêtres, a permis de réduire et même supprimer les ponts thermiques. « Nous avons prévu une étanchéité à l’air et à l’eau exceptionnelle » annonce Rob Miners.

Les fenêtres de triple vitrage, avec du gaz argon et une double couche de pellicule basse émissivité (low-e) sont (presque) ce qui se fait de mieux sur le marché. Elles vont chercher la palme de la résistance thermique: R−6! Pour comparaison, les fenêtres classiques offrent une résistance à R−2,5.

Enfin, l’Abri est revêtu d’une toiture métallique, sélectionnée pour sa durée de vie exceptionnelle et son look recherché ; « pour les murs nous proposons le bois teint, un matériau noble de qualité et au caractère chaleureux, et dans certains projets nous ajoutons du bois peint d’une couleur riche pour son contraste avec le bois teint et la facilité de son entretien. » précise Rob.

6 dimensions, des prix abordables

L'aménagement efficace et la méthode de construction simple et abordable de l'Abri permettent aux familles de se bâtir un chez-soi qui sort de l’ordinaire. Le concept de l’Abri se décline en plusieurs modèles. Les variations jouent sur le nombre de chambres à coucher:

  • L’Abri 1850-BV compte 3 chambres et 2 salles de bain complètes. Il est idéal pour ceux qui cherchent une maison en campagne qui peut accueillir confortablement tous les membres de la famille ou des invités.
  • L’Abri 1400-SV est un modèle ultra bien pensé avec 2 chambres, 2 salles de bains et plusieurs espaces pour du rangement. La parfaite maison plain-pied pour la famille de taille moyenne.
  • L’Abri 1500-SV est un modèle sur deux niveaux prévu pour un terrain en pente, offrant beaucoup d'espace dont 3 chambres fermées et 2 aires oubertes. Un modèle parfaitement adaptée aux familles qui ont besoin d'espace bien pensé et divisé, ce modèle en rez de jardin peut se transformer en sous-sol.
  • L’Abri 1100-SV est un modèle sur deux niveaux prévu pour un terrain en pente, offrant une chambre fermée et de la place pour deux lits escamotables. Un modèle intermédiaire plus compact mais spacieux. 
  • L’Abri 750-BV est un modèle de style loft qui compte une belle grande chambre à coucher des maîtres. Avec sa terrasse intime en option, cette petite maison fait une grande place à la lumière et à la vue extérieure avec un côté entièrement fenestré. 
  • L’Abri 550-BV, en format loft, ne comporte pas de chambre fermée mais propose un lit escamotable. Avec ses 550 pieds carrés, il offre un pied-à-terre accueillant et fonctionnel.

Votre terrain est en pente? L'Abri peut aussi s’adapter au relief sur lequel il sera construit: les modèles sur deux niveaux permettent de profiter d’un terrain en pente et d’un aménagement compact et efficace. Noter que les vérandas ne sont pas calculées dans les superficies.

En savoir plus sur l'Abri

Maison préfabriquée 100% québécoise écologique et économique. Élégante, confortable et ensoleillée, son concept de plain pied est idéal pour les familles, les personnes à mobilité réduire et les aînés. Modèle 1 chambre
L'aménagement efficace et la méthode de construction simple et abordable de l'Abri idéal pour les personnes à mobilité réduite et les jeunes retraités. Modèle 1 chambre à coucher. © Studio MMA
Maison préfabriquée 100% québécoise écologique et économique. Modèle de 3 chambres
L'aménagement efficace et la méthode de construction simple et abordable de l'Abri idéal pour les familles, les personnes à mobilité réduite et les jeunes retraités. Modèle 3 chambre à coucher. © Studio MMA

Découvrez les avantages et les inconvénients des maisons préfabriquées.

Pour nos conseils sur la planification d'un projet de construction, c'est ici!