Monument Architecture

  • 3 Réalisations
  • 1 Service
Voir cette entreprise

Saint-Gérard

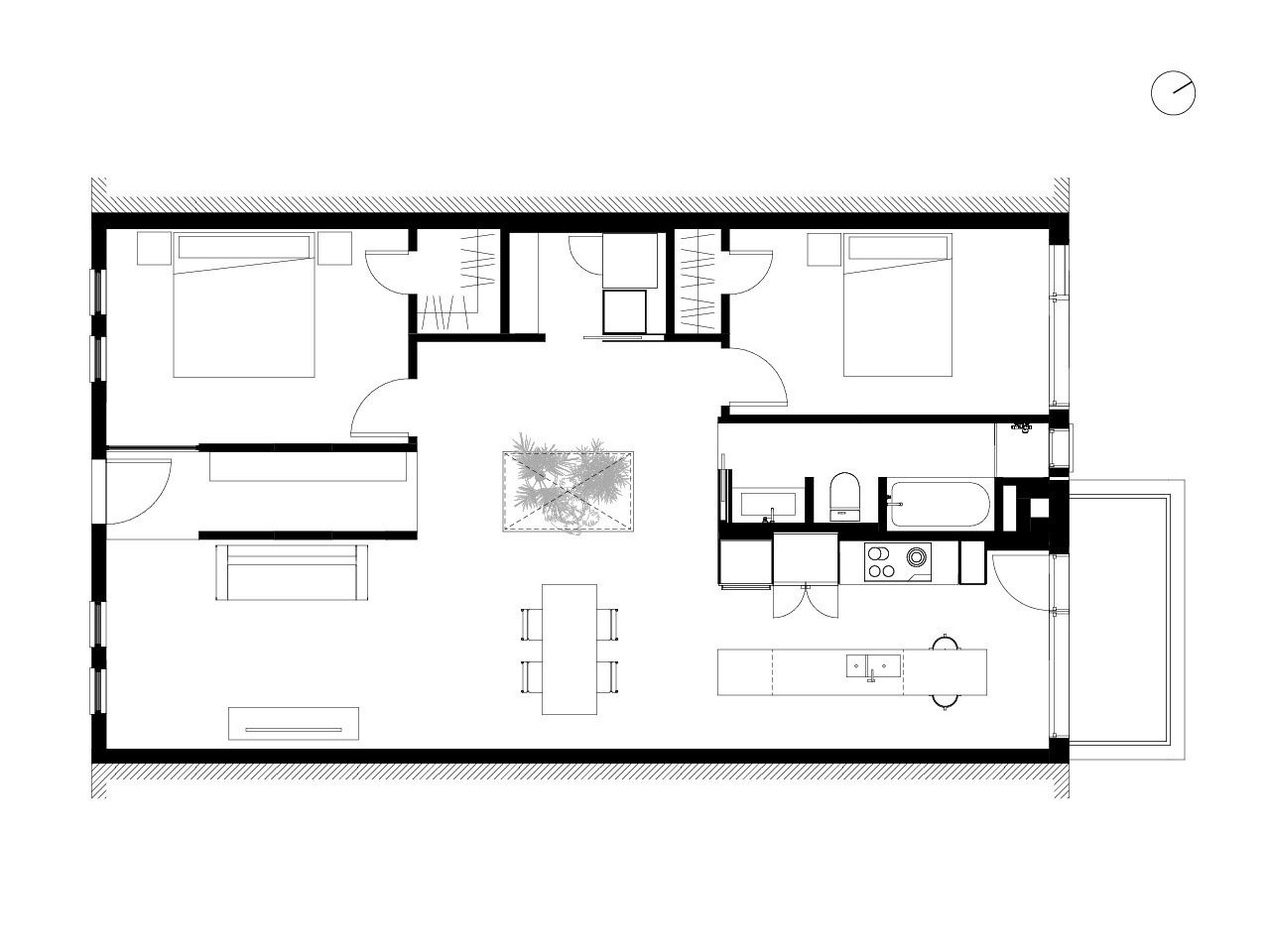
Plan de niveau, Montréal/Laval/Longueuil (Grand Montréal)

L'ancienne configuration très cloisonnée de ce logement typique a été revue afin d'ouvrir les espaces sans modifier toute la structure existante. Grâce au lanterneau positionné au cœur du logement et de nouvelles grandes baies vitrées à l'arrière, l'apport de lumière naturelle a été grandement augmenté. Le choix sensible de matériaux et la réutilisation d'éléments existants tels que les plinthes et les portes en chêne ont permis un dialogue entre le passé et le présent.

Recherches associées

Autres photos dans Saint-Gérard