La Conviviale est un ensemble de logements sociaux ayant fait l’objet d'un design réfléchi pour favoriser les gains solaires et la performance écoénergétique. Piloté par l’Office d’Habitation Rimouski Neigette (OHRN) et dessiné par la firme d’architecte Proulx-Savard, ce projet a aussi bénéficié des conseils d’Écohabitation, ce qui a permis de simplifier le design et d’améliorer son rendement thermique.

Conception solaire passive

Conçue selon les principes du design solaire passif, la Conviviale favorise l’ensoleillement direct en hiver, et limite la surchauffe en été. Pour réussir à obtenir son indice solaire passif (ISP) de 38 kWh/an, le complexe d’immeuble a d’abord dû être érigé dans un axe est-ouest qui lui permet d’obtenir à longueur d’année un ensoleillement optimal, et donc un maximum de gains thermiques, en hiver. Pour les périodes plus ensoleillées, un surdimensionnement des débords de toits et des balcons permet d’assurer l'ombrage des fenêtres, limitant ainsi la surchauffe. Cet élément est particulièrement important au cours des mois de mars, avril et mai, ainsi que septembre, octobre et novembre, des périodes avec un soleil bas, mais relativement fort.

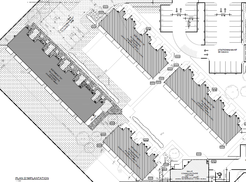
Extrait du plan d’implantation © OHRN, 2017

La planification : la clé du projet

Afin d'optimiser le design solaire passif, plusieurs simulations ont été réalisées. Alain Hamel, directeur du service technique de l’OHR, et ancien collaborateur d’Écohabitation, a également été mis à contribution. Ayant travaillé sur plusieurs projets faisant appel à ces principes, et ayant notamment construit sa propre maison solaire passive au Saguenay-Lac-Saint-Jean, l’une des plus performantes au Canada, son implication a permis de favoriser les gains thermiques en hiver et d’éviter la surchauffe pendant la période chaude.

Ensoleillement sur La Conviviale en hiver © SHQ, 2018

L’orientation optimale du bâtiment n’aurait toutefois pas été possible sans l’obtention d’une dérogation au règlement de zonage municipal. En effet, puisque dans ce genre de projet l’ensoleillement et le choix du site dictent l’orientation que doit prendre le bâtiment, il est essentiel de s’assurer de la conformité aux normes d’implantation très tôt dans la planification. Monter un dossier pour obtenir une dérogation auprès de la municipalité est ainsi chose courante... à prévoir dès le départ !

Enveloppe à basse consommation et fenestration performante

Le design solaire passif ne permet toutefois pas à lui seul d’obtenir une bonne performance énergétique : le bâtiment doit aussi être muni d’une enveloppe à valeur isolante élevée, principalement pour limiter les pertes de chaleur en hiver. Dans le complexe la Conviviale, des fenêtres à triple vitrage, une isolation hyperperformante et une grande étanchéité à l'air concourent à assurer une performance énergétique optimale à l'année longue !

Fenestration de La Conviviale © OHRN, 2016

Dans la première phase du projet, les valeurs d’isolation atteignaient R40 pour les murs et R70 pour la toiture. Les valeurs d’étanchéité variaient quant à elles entre 0,32 et 0,51 de changement d’air à l’heure (CAH), alors que la référence Novoclimat de l’époque était de 1,5 CAH. La certification Passivhaus exigeait pour sa part 0,6.

Pour la phase 2, l’isolant des murs a été épaissi pour atteindre R43 et celui du toit R72. Le design des murs a aussi été simplifié en réduisant le nombre de composantes. Alors qu'en phase 1 le mur était composé de deux panneaux d’isolant rigide expansif, dans la phase 2, un seul panneau d’isolant, plus épais, a été posé. Un pare-air a été ajouté et le pare-vapeur collé à un panneau isolant a été remplacé par un pare-vapeur intelligent étanche à l’air : « Intello Plus ». L'assemblage est donc simplifié, mais tout autant performant !

 

 

 

 

 

 

 

 

 

 

 

 

 

 

Simplification du design des murs entre la Phase 1 et 2 © OHRN, 2017

L'« Intello Plus » remplit quant à lui deux fonctions : dans un premier temps, il permet de favoriser le séchage intérieur (selon le taux d'humidité, les pores de la membrane intelligente peuvent s'agrandir ou se refermer). Dans un deuxième temps, cette membrane a pour résultat l’augmentation de la température intérieure, ce qui permet de réduire les infiltrations et de garantir l'intégrité de la membrane à travers les années. En effet, au fil du temps, le recouvrement extérieur finit généralement par être percé, par des fils passés par les compagnies de câble ou par des dommages dus aux activités des locataires, par exemple. La marge de manœuvre donnée par l'augmentation de la température de la cavité permet d'éviter qu’elle n'atteigne le point de condensation, et donc que ne se forme de l'humidité, ce qui assure une plus grande durabilité dans le temps.

Indice solaire passif (ISP)

Grâce aux informations fournies par l'OHRN, l'ingénieur Denis Boyer d'Écohabitation a mesuré l'indice solaire passif (ISP) de La Conviviale grâce à des modélisations détaillées. Au final, l'édifice obtient un excellent score avec une moyenne annuelle de chauffage de 36 kWh/m², ce qui est impressionnant pour un climat aussi rude que celui de Rimouski! Cette performance s'explique par plusieurs facteurs.

Compacité

D'abord, le bâtiment La Conviviale est d’une compacité exemplaire. La compacité se mesure en divisant la surface extérieure de l’enveloppe du bâtiment par son volume. Dans le cas de La Conviviale, la superficie de l’enveloppe est de 1 820 m2 pour un volume intérieur de 4 300 m3, ce qui résulte en une compacité de 0,42 [m-1] (le critère pour songer à la certification Passivhaus est de 0,75 [m-1]).

Choix de vitrage

Tel que mentionné plus haut, un élément clé du design solaire passif réside dans le choix du vitrage. Dans le cas de La Conviviale, on a opté pour les fenêtres suivantes, ce qui a permis de maximiser l'ensoleillement tout en diminuant la surchauffe :

  • Sud : Cardinal LoE2 180 (face 2), argon 12,7 mm, verre clair 3 mm, argon 12,7 mm, Cardinal LoE2 180 (face 5)

  • Nord : Cardinal LoE2 272 (face 2), argon 12,7 mm, verre clair 3 mm, argon 12,7 mm, Cardinal LoE2 272 (face 5)

Orientation

La façade ayant la plus grande fenestration est orientée plein sud alors qu’il n’y a qu’une fenêtre au nord pour chaque logement. Le schéma ci-dessous illustre le bilan énergétique en déviant de cette situation idéale.

On peut constater que le coût énergétique des fenêtres est le plus faible lorsque l’orientation de la façade principale est plein sud (180°). On constate aussi que le choix de vitrage est optimal par rapport au choix inverse. En effet, le vitrage « sud » bénéficie d’un gain solaire plus élevé que le vitrage « nord », et bien que sa valeur isolante soit légèrement plus faible, le bilan annuel est grandement amélioré.

Les sources principales de pertes d’énergie sont donc, par ordre croissant :

  1. Les fenêtres
  2. La ventilation (incluant l’infiltration)
  3. Les murs extérieurs hors sol
  4. La dalle du sous-sol
  5. La toiture
  6. Les murs extérieurs sous le sol

Il est à noter cependant que les fenêtres permettent simultanément des gains importants qui améliorent grandement leur bilan énergétique annuel. En tenant compte de ces gains, les fenêtres seraient reléguées au troisième rang.

Ponts thermiques

Jonction entre les murs

On constate que la température de surface du mur du côté intérieur (+19,4 °C) est en tout point très près de la température de consigne (+20 °C) même par une température extérieure de –20 °C, ce qui est un gage de confort intérieur et d’économie d’énergie. On peut donc considérer cette jonction comme n’ayant pas de pont thermique.

Jonction mur-toit
Jonction mur-toit

À la jonction entre le mur et le toit, on constate à nouveau qu’il n’y a pas d’incursion du froid vers l’intérieur de l’enveloppe thermique. Il s’agit donc à nouveau d’une jonction sans pont thermique.

En se basant sur cette expérience, M. Hamel considère que la SHQ aurait avantage, dans l’intérêt d’augmenter la performance énergétique, le confort et la durabilité des bâtiments construits et rénovés sous l’égide de ses multiples programmes, de modifier les paramètres de conception de ses projets. Ceci permettrait de mettre de l’avant des principes éprouvés, priorisant des solutions au design simplifié, abordable et performant.

Financée par la Société d'habitation du Québec (SHQ) dans le cadre du Programme d’appui au développement de l'industrie québécoise de l'habitation (PADIQH), cette première étude de cas sur une série de quatre présente les enseignements des professionnels oeuvrant dans le logement social et communautaire du Québec.

Accédez à la page principale du projet de La Conviviale.

Accédez à l'étude de cas sur le système de ventilation de La Conviviale.