Depuis 1999, Novoclimat est le fer de lance de la construction résidentielle haute performance. Depuis le début du programme, plus de 52 882 logements accrédités ont vu le jour, toutes catégories confondues, affichant 20 % d’efficacité supplémentaire aux bâtiments construits selon le Code de construction du Québec. Le programme se concentre sur l’efficacité énergétique de l’enveloppe et des systèmes mécaniques.

Volet Grand bâtiment multilogements: moins connu des promoteurs privés

Le volet Grand bâtiment multilogements n’est pas nouveau, mais il est méconnu de nombreux constructeurs et promoteurs immobiliers privés. Pourtant, c’est le volet qui leur est le plus favorable: c’est entièrement à eux qu’est remis l’aide financière, une fois l’homologation Novoclimat reçue.

On compte tout de même 1 636 unités de logements d'immeubles de 4 à 10 étages homologuées en 2017-2018, mais plus de la moitié des promoteurs sont publics, principalement des Offices municipaux d’habitation (OMH). Ces années-là, plus de 50 % des projets homologués sont des projets immobiliers sociaux du programme AccèsLogis de la Société d'habitation du Québec.

Le Mimosa du Quartier, immeuble de logements sociaux de 21 unités de logements abordable et de qualité, est homologué Novoclimat. Il a bénéficié d'une subvention de 57 705 $ du programme. De plus, les architectes de Lapalme Rheault Architectes et Associés sont allés chercher la certification LEED® Habitations. Le projet a également bénéficié du financement du programme AccèsLogis Québec de la Société d'habitation du Québec (SHQ). © Lapalme Rheault Architectes et Associés

Aides financières conséquentes pour les grands bâtiments

Tous les immeubles à logements de plus de 600 m2 et comptant jusqu’à un maximum de 10 étages peuvent bénéficier de montants intéressants par unité construite:

  • Pour un bâtiment privé, chaque logement complet donne droit à 1 300 $ par logement,
  • Et pour un bâtiment à vocation sociale, c’est 2 925 $ qui sont attribués pour un logement complet de 2 chambres ou plus.

Ainsi, pour un projet de construction de 100 logements, ce peut être 130 000 $ à aller chercher. Pour un programme gratuit (pas de frais d’inscription, d’inspection, etc.), c’est assez avantageux.

Pas d’accréditation professionnelle obligatoire

Le programme s’est adapté au contexte des grands projets: l'entrepreneur général des multilogements de plus de 600 m2 n’est pas tenu d’obtenir l’accréditation Novoclimat. Pas de formation, pas démarche administrative requise.

Par contre, l’entrepreneur doit obligatoirement avoir recours aux services d’un spécialiste en ventilation certifié Novoclimat pour l’installation du système de ventilation.

Le processus de contrôle s’applique au bâtiment lui-même:

  1. Inscription du projet. À l’étape de l’inscription, une analyse préliminaire du projet est réalisée afin de vérifier son admissibilité, ainsi que le respect des objectifs et des principales modalités du programme. Le projet est officiellement inscrit à la réception de la lettre de confirmation d’inscription envoyée par TEQ au requérant du projet. Ça se passe donc bien avant le début des travaux et avant même de commencer les soumissions ou d’obtenir le permis de construction : formulaires remplis, documents d’architecture et mécaniques soumis.
  2. Suivi et inspections. D’abord pendant une réunion de démarrage et inspection de la dalle, puis une fois l’enveloppe terminée, avec un test d’infiltrométrie et enfin lors du rapport d’équilibrage et visite finale
  3. Homologation. Délivrée par Transition énergétique Québec lorsque le bâtiment est jugé conforme aux exigences et aux modalités du programme
  4. Versement de l’aide financière.

Avec cette formule, Novoclimat offre aux entrepreneurs l’opportunité de faire accompagner la conception et la construction de leur projet résidentiel. « Vous avez des doutes sur la conformité de votre multilogement? Pas de problème, vous pouvez envoyer vos plans achevés à 75 % pour révision par l’équipe Novoclimat » résume Emmanuel Cosgrove, directeur d’Écohabitation, « dès le début de la conception du projet, on identifie les solutions pour être conforme aux critères prescrits et construire de meilleurs bâtiments, plus confortables pour ses occupants ».

Aspects techniques: Novoclimat redessine un standard durable

À l’heure où des dizaines de grands bâtiments résidentiels voient le jour, nombreux sont ceux qui présentent de défauts de conception réduisant de beaucoup la performance énergétique. Les exigences techniques des volets Petits et Grands bâtiments multilogements ont pris le parti de promouvoir les bonnes pratiques d’hyperperformance. « Le programme a vraiment été conçu pour faciliter l’adoption des détails constructifs d’efficacité énergétique » commente Emmanuel Cosgrove.

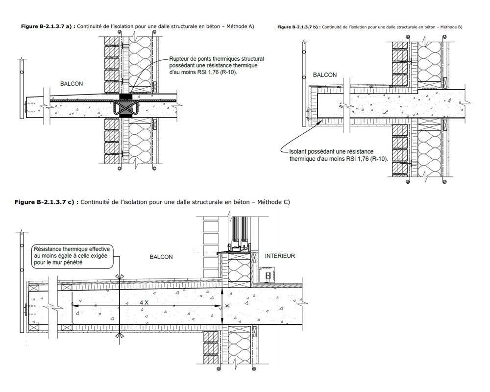
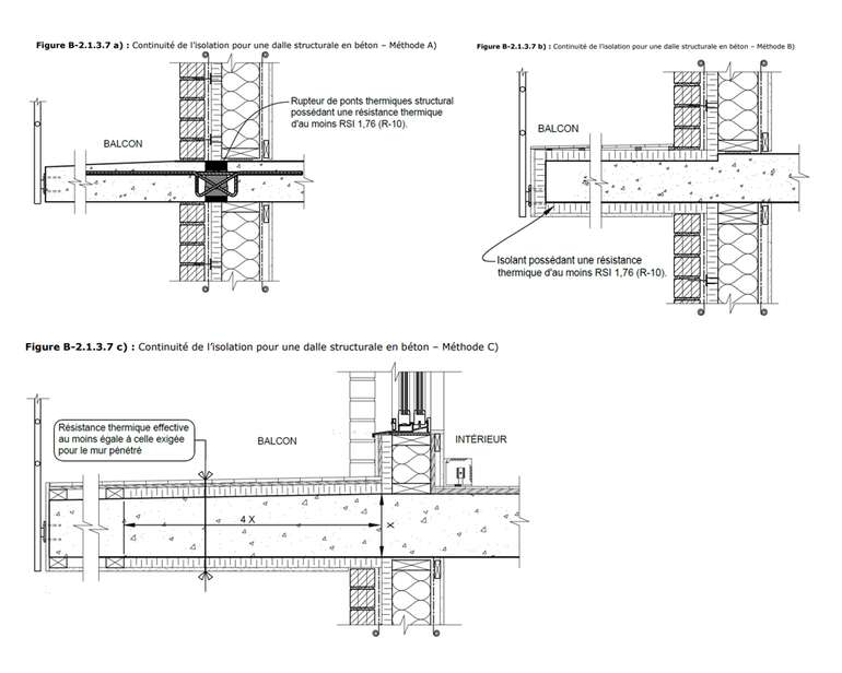
Un problème couramment rencontré, pointé du doigt par Écohabitation, est celui des balcons de béton construits dans le prolongement de la dalle de structure. Ce type de balcon agit comme une ailette de refroidissement en créant un pont thermique entre l’extérieur froid et la structure intérieure chaude qui le porte

Un réel problème d'efficacité énergétique! On peut évaluer les déperditions thermiques à 90 %. De plus, des moisissures risquent de se former au point de pénétration des balcons dans l’enveloppe isolée des bâtiments. Le programme Novoclimat engage donc les entrepreneurs à adopter des alternatives, soit:

  • en séparant le balcon de la structure avec un rupteur de ponts thermiques structural d’au moins R10;
  • en isolant le balcon par l’extérieur à au moins R10;
  • en réalisant un assemblage isolant R12 coupant les ponts thermiques en recouvrant au minimum les 2/3 de la surface de contact et avec un matériau résistant aux moisissures d’au moins R-0,51, posé dessus et sous la dalle intérieure sur une distance équivalant à au moins quatre fois l’épaisseur de la dalle.

Les structures de balcons auto-portantes à l'extérieur sont aussi de bonnes options.

Source: Exigences techniques Novoclimat - Grand bâtiment multilogement
Source: Exigences techniques Novoclimat - Grand bâtiment multilogement

Deux autres détails constructifs sont revus et corrigés par Novoclimat. Tout d'abord, le programme formule des exigences spécifiques quant aux bâtiments en structure de béton, typologie qui domine les grands bâtiments. Les vides techniques qui traversent un mur, un plancher, un plafond ou un toit exposé et prévus pour dissimuler les conduits de ventilation, tuyaux, câblage, etc. doivent être considérés comme des espaces non chauffés à l’intérieur du plan d’isolation, et donc être isolés commes des murs hors-sol ou toitures, selon l'espace en question. Ainsi, les désagréments des ponts thermiques sont corrigés.

Ensuite, les exigences poussent à délaisser les murs rideaux au profit de fenêtres. En effet, les fenêtres et portes avec vitrage comme les murs-rideaux n’étant pas admissibles à l’homologation ENERGY STAR, les critères d’admissibilité ont été pensés pour être autant exigeants. En Zone 2, la fenestration des murs rideaux doit atteindre 1,4 W/m²•K (équivalent à R4).

En bref, la philosophie Novoclimat considère que les murs rideaux ne devraient pas constituer une faiblesse dans l’enveloppe par rapport aux autres fenêtres. Étant donné que le procédé constructif pour y parvenir est assez dispendieux, cela revient à dissuader les murs-rideaux.

Considérant l’évolution des indicateurs économiques et du marché de l’habitation, l’Association des professionnels de la construction et de l’habitation du Québec s’attend à 43 500 mises en chantier résidentielles. Selon la Société canadienne d'hypothèques et de logements (SCHL), en plus de connaître la meilleure croissance parmi les différents types de logements, les appartements forment près de 70 % de l’ensemble des mises en chantier dans les centres urbains de plus de 10 000 habitants de la province. Un grand potentiel d'optimisation énergétique!

Trouvez plus de pages sur les pratiques écologiques pour les grands bâtiments ci-dessous et dans notre guide de la construction écologique.

Trouvez des professionnels et des produits ainsi que des projets de maisons écologiques exemplaires dans notre répertoire de l'habitation durable.