Un design soigné et distinctif, une mise en œuvre qui demande de l’expertise, des matériaux et produits de qualité et écologiques : la Maison Passive Saltbox a tout d’un projet exemplaire. En documentant le projet avec une série web, les architectes de l'Abri ont voulu partager leur expérience personnelle auprès du public, pour démystifier la construction écologique, ainsi qu’auprès des professionnels de l’architecture et de la construction. Voici les dessous du projet Saltbox!

Architecture durable et conception intégrée

Dans sa pratique, L’Abri approche l’architecture écologique de façon holistique. Conscient de l’enjeu environnemental autour des bâtiments, le fondateur de L’Abri, Francis M. Labrecque estime que les professionnels de l’architecture et de la construction « doivent porter sur leurs épaules la transition vers une architecture plus respectueuse de l’environnement. ».

Cette approche a tout à fait concordé avec la demande du client, propriétaire d’un terrain à Bromont, déjà bien informé sur l’habitation durable. « Une maison durable, performante et adaptée au site dont la topographie est bien particulière » : la demande initiale du client a été le point de départ d’une longue réflexion concertée avec l’entrepreneur général, Construction Rocket. 

La conception intégrée a permis d’orienter immédiatement le projet dans la bonne direction : « commencer le processus dès le tout début avec toute l’équipe en place (architecte, nous, ingénieur, excavateur) nous a permis d’éviter plein de dépenses inutiles. », explique Sarah Cobb, consultante certifiée Passive House de Construction Rocket.

Elle précise d’ailleurs qu’il a été « très agréable de travailler avec une équipe où il n’y a pas d’égo sur la table. On a essayé de respecter la vision et l’esthétique de L’Abri, qu’on respecte énormément ». La réussite de ce travail conjoint est due à l’attention des architectes de L’Abri portée lors de la phase de conception : « ils ont été particulièrement à l’écoute de nos préoccupations quant aux détails techniques. » témoigne William Murray de Construction Rocket.

L’attention portée aux détails techniques a permis de pousser au maximum la performance énergétique : « Les bâtiments consomment près de 40% de notre énergie utilisée au Canada. Il est temps qu’on songe à leur consommation dès leur conception » souligne Sarah.

Le projet Saltbox vise les prestigieuses certifications Passive House (version US) et LEED® Platine

« Ce n’est pas parce que notre énergie a un faible coût, qu’on devrait la gaspiller » C’est la vision de Construction Rocket, qui avait déjà à son actif un projet certifié Passive House, la Maison des Sources, et cinq projets LEED® Platine.

Passive House US : les bénéfices et défis de directives strictes

Mais atteindre ces standards de performance représente à chaque fois un défi : loin de prendre la performance pour acquise, l’équipe de construction, dirigée par William Murray, a redoublé d’efforts pour assurer la parfaite étanchéité à la maison Saltbox : « La forme de la maison est atypique et l’enveloppe est grande et de forme irrégulière, ce qui amène des défis au niveau de la certification PHIUS. ».

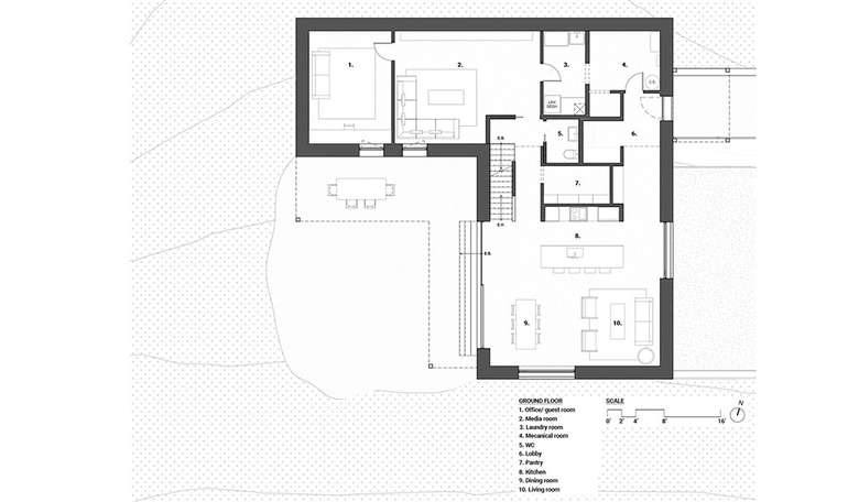
Plan en L de la maison Saltbox

L’équipe a vraiment utilisé les exigences de la certification Passive House comme un guideline pour concevoir et construire minutieusement. La version américaine de la certification allemande, délivrée par le Passive House Institute des États-Unis (PHIUS), cible des standards de performance adaptés à notre climat. « Le logiciel de modélisation de rigueur, WUFI, comptabilise TOUS les éléments. » explique Sarah. Il permet de suivre et de régler tous les détails avant la construction, ce qui n’est pas la norme dans l’industrie de la construction.

Enfin, « l’inspection par une tierce partie et le test d’infiltrométrie garantissent la qualité du travail de construction réalisé », mentionne Sarah Cobb.

LEED® : une certification holistique, bien connue et facile d’accès

La certification LEED® habitation, qui exige elle aussi deux inspections, l’une pour l’enveloppe et l’autre à la toute fin du projet, ainsi qu’un test d’infiltrométrie, met l’accent sur l’impact de la maison sur l’environnement et les gens qui y habitent. Environnement, santé : voilà le vrai plus de la certification LEED®.

LEED® offre des paliers de performance énergétique pour pousser plus loin la certification, alors que Passive House met la barre haute pour tous les projets.

Architectes et constructeurs reconnaissent la simplicité du processus de certification LEED® avec l’équipe d’Évaluations Écohabitation : « On est reconnaissant à Ecohabitation d’avoir traduit le tout pour pouvoir le présenter aux clients dans leur langue. Les communications et exigences de PHIUS peuvent être compliquées par le fait qu’ils ne comprennent pas du tout la bureaucratie de l’industrie, du code du bâtiment, ni la Garantie de Construction Résidentielle au Québec » commente Sarah Cobb.

Les défis de la haute performance sur chantier

Les architectes de L’Abri réalisaient avec la Saltbox leur premier projet visant la certification Passive House. Pour Francis Labrecque,  « le plus gros défi aura été de réfléchir aux détails liés à la fondation sur plusieurs niveaux et à la double ossature. »

La construction en double ossature a été choisie, car ses avantages font toute la différence : elle permet d’atteindre une excellente valeur R et d’éviter tout pont thermique. « La double ossature nous permet d’ajuster la quantité d’isolation comme on veut, on n’est plus limité par la profondeur de notre montant de bois. » précise William Murray.

Et la quantité d’isolant a été maximisée! L’équipe de construction a soufflé presque 34 000 livres de cellulose dans les murs et le toit! La grande quantité de bois de charpente et de cellulose, des matériaux biosourcés, représente une grande masse de stockage de carbone.

Autres produits biosourcés sélectionnés pour le projet : le panneau de contreventement écologique et isolant SONOclimatECO4, manufacturé par MSL à Louiseville. Fait de fibres de bois recyclées à 100%, dont 46 % post-consommation, 31 % post-industriel, il est particulièrement durable et offre une bonne perméance à la vapeur.

Les membranes pare-air et pare-vapeur intelligentes de Proclima, vendues par 475 High Performance Building Supply Canada, permettent aux murs de sécher dans les deux sens.

Maison Passive Saltbox: construction de la structure double ossature
© Construction Rocket
Maison Passive Saltbox Construction, gros oeuvre vue intérieure
© Construction Rocket
Maison Passive Saltbox Construction: vue intérieure du chantier, fenêtres
Détails de construction © Construction Rocket

Voici les caractéristiques écologiques de la maison Satlbox, en quelques chiffres :

  • Consommation de 9 269 kWh/an en simulation, soit l’équivalent de 80 $ /mois pour toute la consommation énergétique de la maison de 2500 pi2
  • Niveaux d’isolation :
    • R-36 sous la dalle
    • R-40 solage
    • R-64 dans les murs
    • R-130 dans le toit
  • Étanchéité : 0,52 CAH à 50 Pascals.

Seule une thermopompe, avec un rendement de plus de 3 watts de chaleur pour chaque watt d’électricité, assure le chauffage de la maison.

Le chauffe-eau hybride équipé d'une thermopompe est plus de trois fois plus efficace qu'un chauffe-eau électrique standard. De plus, toute la tuyauterie est planifiée et dessinée selon les critères de PHIUS pour minimiser la consommation : appareils à débit réduit et un volume maximal d’eau dans les tuyaux en tout temps. Tous les tuyaux d’eau chaude sont isolés et il faut que la température de l’eau de bain monte d’au moins 10 degrés C avant que deux litres aient coulé.

Enfin, des ampoules DEL ont été choisies pour les luminaires et les électroménagers sont à faible consommation.

Un design qui allie patrimoine et modernité

Le guide architectural du développement de Bromont imposait de donner un style campagnard pour la maison, « notre stratégie a été de raconter une histoire avec la maison, sans tomber dans le faux vieux et le toc », commente Francis Labrecque.

La volumétrie de la maison s’inspire de la typologie historique saltbox, rappelant le patrimoine bâti de la région. Francis M. Labrecque précise : « la saltbox est typique de l’architecture coloniale américaine, très répandue dans le paysage rural d’Estrie et de Nouvelle-Angleterre. » Avec son toit à deux versants sur la section principale, et un toit à un seul versant sur la section plus basse, elle fait penser aux boîtes avec un couvercle dans lesquelles on conservait à l’époque le sel à l’écart de l’humidité.

La Maison Saltbox est typique de l'architecture colonial américaine
© Raphaël Thibodeau
La Maison Saltbox s'inspire d'une typologie courante dans les cantons de l'est
© Raphaël Thibodeau

Le plan en « L » a été exploité à son plein potentiel : orienté plein sud, il est parfait pour favoriser le chauffage solaire passif et les vues panoramiques sur la vallée.

Le design intérieur de la maison Saltbox a été pensé selon un concept moderne et épuré. La pièce principale, spacieuse et lumineuse, grâce à ces larges baies vitrées et portes-patio en triple vitrage de NZP Fenestration, s’organise en un seul espace qui peut se vivre de différentes façons. Le plafond cathédrale et les murs blancs créent des jeux de lumière mettant le blanc dominant en valeur. Le plancher de béton contribue à la simplicité et au raffinement du design.

Design intérieur moderne et épuré: planchers de béton lissé et aire ouverte lumineuse
© Raphaël Thibodeau
Design intérieur épuré: un bloc central regroupe tous les éléments fonctionnels
© Raphaël Thibodeau

Un bloc central qui regroupe les éléments plus fonctionnels, comme l’entrée de style mud room, le garde-manger et la salle d’eau, tout en les gardant très accessibles. La cuisine trône au cœur de ce bloc central, avec son îlot et ses rappels de bois qui offrent des contrastes intéressants. Autres touches de bois dans la maison : les escaliers, la main courante et les rebords de fenêtres de la mezzanine à l’étage supérieur.

Découvrez la Maison Passive Saltbox en vidéo!

Découvrir toutes les étapes d’une superbe maison passive, sur le terrain : on aime ça!

L’Atelier d’architecture L’Abri est vraiment fier de partager son expérience dans une série web. Le travail conjoint des architectes et de l’équipe de Construction Rocket y est mis à l’honneur. Et comme la plupart des matériaux proviennent de la quincaillerie locale BMR, le Groupe québécois BMR a associé son image à cette série. Trois autres manufacturiers et distributeurs qui ont fourni des produits et matériaux pour la construction de la Saltbox sont partenaires des épisodes les concernant :

  • NZP Fenestration, le seul fabricant de portes et de fenêtres oscillo-battantes haut de gamme et certifiées Passivhaus dans l’est de l’Amérique du Nord
  • Maibec, manufacturier spécialiste de systèmes de revêtements extérieurs de bois véritable et d'ingénierie
  • 475 High Performance Building Supply Canada, distributeur de matériaux et produits spécialisés pour les bâtiments durables à haute performance, de maisons passives et à énergie zéro

Produite par la compagnie montréalaise content content, cette série web de 5 épisodes est diffusée cet automne 2020 par Écohabitation.

Inspirez-vous et défiez les conventions!

Série web Maison Passive Saltbox

Voir toutes les vidéos