D’une maison unifamiliale à un immeuble de 20 logements

On vous a préalablement parlé de ce projet à caractère social hautement performant. Mais le projet du Mimosa du Quartier mérite aussi d’être cité en raison du fait qu’il réponde à plusieurs considérations urbanistiques.

Idéalement situé près d’un secteur urbanisé de l’île de Hull, le Mimosa se trouve près de tous les services. L’édifice communautaire fait face à l’école secondaire de l’Île et se trouve à deux pâtés de maisons de l’école primaire Saint-Rédempteur, ce qui permet à l’organisme de remplir plus facilement sa mission de soutien aux familles.

Localisation du Mimosa dans la trame urbaine © Google Maps, 2019

Un arrêt de bus est situé à quelques pas, l'épicerie et la pharmacie se trouvent dans un rayon de 500 mètres et l'épicerie grande surface est quant à elle à un peu plus d’un kilomètre. Cette dimension du projet se reflète en l’obtention d’un excellent Walk Score de 74 % (très propice à la marche), d’un pointage de 75 % pour le vélo et de 60 % pour l’accessibilité au transit (bon accès).

Localisation du Mimosa dans la trame urbaine, vue 3D © Google Maps, 2019

Si le bâtiment est aussi bien intégré à la trame urbaine, c’est qu’il est construit à la place d’une ancienne maison unifamiliale détachée. De fait, la plupart des lots bien localisés au sein de la trame sont des sites déjà construits. La densification et l’actualisation de ces quartiers matures passent donc nécessairement par une stratégie de construction de la ville... sur la ville.

Et la construction de cet immeuble de 21 logements ne contribue pas qu’à la densification du secteur, elle permet aussi la diversification de l’offre immobilière et favorise une plus grande mixité sociale dans ce secteur où la plupart des nouvelles constructions sont des immeubles à condos.

Un petit site avec beaucoup de potentiel, mais aussi plusieurs défis!

L’achat par le promoteur de ce terrain qui logeait une unique maison représentait une occasion inespérée de créer du logement social dans un quartier déjà développé et bien connecté à la trame urbaine. Mais, tout en contribuant à la densification de ce secteur, plusieurs défis étaient à anticiper, en raison de la nature du site. En effet, construire un immeuble de 21 logements et de 5 étages à la place d’une maison unifamiliale n'est pas si simple !

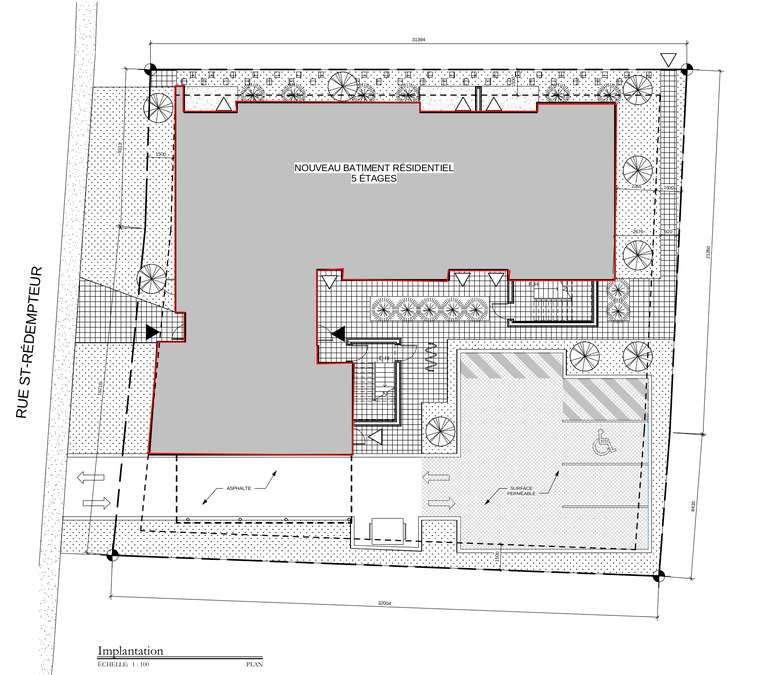
Plan d’implantation, Mimosa du Quartier © Lapalme Rheault architectes + associés, 2013

D’abord, bien que le terrain fût vaste à l’échelle d’une maison unifamiliale détachée (environ 7 000 p²), y construire un immeuble de 21 logements qui respectait les normes municipales était impossible. Comme nous l’a dit M. Christian Rheault, l’architecte responsable du projet : « En regardant uniquement la grille de zonage, ce projet n’aurait pas pu se faire ! » Aussi, avant même de se mettre devant la planche à dessin, l’équipe devait s'attarder aux dérogations des normes d’implantation et à la densité autorisée dans ce secteur.

Modélisation du Mimosa © Lapalme et Rheault — Architectes + associés, 2015

Heureusement, le processus de rezonage avait déjà été entamé auprès de la Ville, ce qui a permis d’éviter des délais. L’élément clé à retenir ici ? Pour ce genre de projet de densification résidentielle, les discussions et démarches avec la Ville doivent être amorcées très tôt.

Comme nous l’a exprimé Mme. Lapierre, « La Ville de Gatineau et particulièrement M. Maurilio Galdino ont été nos grands alliés, sans qui nous n’aurions pu faire naître le projet ! » Lorsqu’un projet correspond aux objectifs de la Ville par rapport au logement social et abordable, comme c’est le cas du Mimosa – « la Ville est d’emblée en mode solution (Christian Rheault) » – et l’obtention de dérogations en est grandement facilitée.

Aménagement extérieur: prioriser les aires de jeu plutôt que les stationnements

Dans la même veine, le respect des normes de stationnement normalement requises pour un immeuble de 21 logements n’aurait pu être possible en temps normal, étant donné l’espace restreint sur le site. L’obtention de dérogations supplémentaires était donc nécessaire. Tout comme pour la question du rezonage, la Ville s’est montrée très compréhensive. Au final, seules trois places de stationnement ont été aménagées sur le site.

Cour pavée, le Mimosa du Quartier © Lapalme et Rheault architectes associés, 2015

Étant donné la population visée, soit des familles monoparentales à faible revenu qui ne possèdent généralement pas d’automobile, la nécessité pour un grand nombre de places de stationnement ne se faisait pas sentir. Plutôt que d’être réservé à la voiture, cet espace est principalement utilisé comme air de jeu pour les enfants et comme un endroit de réunion par la communauté lors de l’organisation d’événements. Ce petit espace pavé remplit ainsi bien plus qu’une fonction !

Un bassin-versant sensible

Localisé sur l’île de Hull, un bassin versant sensible entouré par la Rivière des Outaouais et le ruisseau de la Brasserie, le site devait impérativement être aménagé de sorte à favoriser autant que possible la rétention des eaux de pluie, et ainsi éviter de contribuer au problème de plus en plus criant des inondations dans la région. Une autre excellente raison pour éviter l’aménagement d’un grand stationnement extérieur, ce qui aurait augmenter l’imperméabilisation du sol !

Carte de l’île de Hull © Map Stamen, 2019

Et comme la construction d’un édifice de 21 logements augmente nécessairement le taux d’imperméabilisation d'un site initialement végétalisé en grande partie, les architectes ont tenté de favoriser la gestion des eaux de surface directement sur le site. Pour ce faire, la plantation d’arbres et arbustes et l’aménagement d’un jardin collectif ont été prévus. L'ensemble devrait faciliter la rétention de l’eau de pluie et de la fonte de neige sur le site.

Cet aménagement ne pourra faire que du bien à ce secteur de Hull où l'on compte un trop grand nombre d'immenses stationnements asphaltés qui contribuent aux problèmes d’inondations et aux îlots de chaleur!

Financée par la Société d’habitation du Québec (SHQ) dans le cadre du Programme d’appui au développement de l’industrie québécoise de l’habitation (PADIQH), cette deuxième étude de cas sur une série de quatre présente les enseignements des professionnels œuvrant dans le logement social et communautaire du Québec.