Quelle est l'épaisseur maximale de mousse Polystyrène expansé (PSE) que l'on puisse mettre à l'extérieur d'un solage en béton après une réparation de fissure?
Nous avons trois fissures à faire réparer avec calfeutrage et pose d'une membrane extérieur et nous voulons isoler le solage extérieur avec dela mousse Polystyrène rigide (blanche) pour éviter que les fissure travaillent à nouveau. Est-ce une bonne solution ?
Bonjour Yvan,
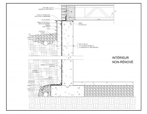
La mousse de polyuréthane giclée adhère fortement aux murs en béton ; il est quasi impossible de l'enlever. Imperméabiliser les murs de l'extérieur est idéal, mais c'est une opération très coûteuse car il faut excaver tout autour de la maison. Vous pouvez également mettre des panneau isolants (PSE).
Normalement, nous recommandons un matelas drainant de type "Delta" pour évacuer l'eau et ensuite, l'ajout d'isolant rigide. Le "pitch", combiné à un matelas drainant, devrait suffire. Si le sol est perméable, vous pouvez éviter de mettre la couche membrane. Par contre, si le sol est argileux, sont installation est fortement recommandée. Ainsi vous aurez donc le "pitch", la membrane élastomère, le matelas drainant, le panneau isolant (foam).
Pour plus d'information, consultez cette page.
Un outil qui pourra grandement vous aider : notre Cahier de projet # 4 - Rénovation d'un sous-sol ou d'un vide sanitaire.
Lire également cette réponse: ISOLATION DU SOUS-SOL. PEUT-ON ISOLER UNE FONDATION DE BLOCS PAR L'EXTÉRIEUR ET PAR L'INTÉRIEUR EN MÊME TEMPS?
N.B. Il n'y a pas d'épaisseur maximale..
Bons travaux,