Que pensez-vous des fondations en bloc de béton isolées avec une membrane Blueskin à l'extérieur et avec de la laine à l'intérieur?
Bonjour, La fondation est dans un terrrain de pierre et de sable en pente qui s'éloigne de la fondation. Celle-ci à été isolé par une membrane blueskin à l'extérieur et de la laine à l'intérieur. Le drain français à été refait. De plus, la fondation en bloc devient un murs en bloc isolé avec du polyeurétane 2 po extérieur et 2 po intérieur. Les travaux ont été fait depuis 3 ans. Es-ce la bonne façon d'agir avec une fondation. Pouvons-nous avoir confiance à ce genre de travaux?
Bonjour Patrice,
Pour ce qui est des fondations en bloc, il s'agit d'un produit qu'on ne voit plus puisque de nombreux problèmes associés à ce type de fondations ont été recensés.
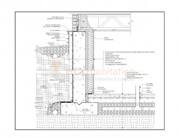
Pour ce qui est de votre isolation, nous ne sommes pas certains de bien visualiser ce que vous mentionnez. Si votre coupe de mur de fondation ressemble à cette image (aussi possible de la voir en haute résolution dans notre article sur l'isolation de sous-sol, par l'intérieur et l'extérieur), c'est parfait. Sinon, il pourrait être possible que des problèmes surviennent.
Bonne chance !